SOLD BY VANILLA SQUARE
The building has undergone a comprehensive programme of works including a brand new roof, making it one of the best maintained tenements in the area and offering buyers complete peace of mind.
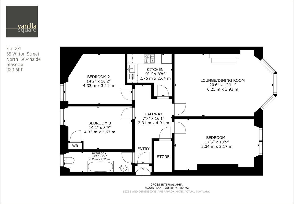
The property itself is beautifully presented throughout and combines traditional character with modern finishes. The accommodation comprises a welcoming reception hallway with excellent storage, a bright bay windowed lounge with fireplace surround and detailed cornicing, a stylish modern internal kitchen, three well-proportioned bedrooms and a contemporary three piece bathroom.
Further benefits include gas central heating, double glazing, secure entry system and access to a well maintained shared rear garden.
Ideally located for the West End, the flat is within easy reach of Great Western Road and Byres Road with their wide selection of shops, cafés, bars and restaurants, and is also close to the Botanic Gardens and Kelvingrove Park. Excellent transport links are available with nearby Underground stations at Kelvinbridge and St George’s Cross, along with convenient access to the M8 motorway network.
EER BAND C





















