Nestled on one of the West End’s most sought-after streets, this exceptional top-floor conversion on Victoria Crescent Road offers a rare blend of period charm, peaceful outlooks, and a prime Dowanhill location. Just moments from the buzzing cafés, boutiques, and restaurants of Byres Road, the property enjoys an enviable position with tranquil, south-facing views over the neighbouring bowling green – a perfect balance of city living and calm retreat.
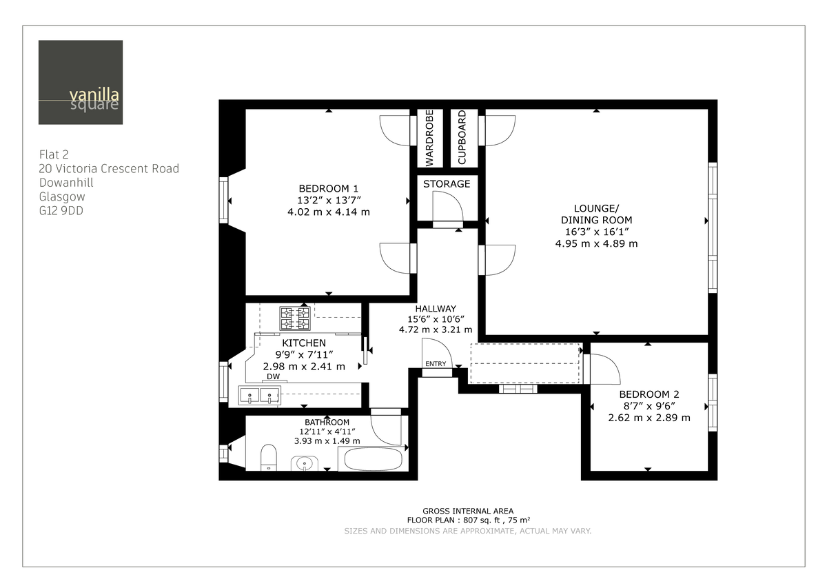
Beautifully presented throughout, the accommodation begins with a welcoming entrance hallway that sets the tone for the home’s warm and elegant finish. The bright and spacious lounge enjoys elevated, open aspects over the bowling green, filling the space with natural light throughout the day. The kitchen is well-appointed with fitted wall and floor units, integrated electric hob and oven, and ample storage.
There are two generous double bedrooms, both with pleasant outlooks. The principal bedroom is positioned to the rear for added privacy and features a built-in wardrobe, while the second bedroom offers excellent flexibility for guests or a home office. The upgraded bathroom combines classic and contemporary style with a crisp white three-piece suite, period-style detailing, and eye-catching tiled finishes complemented by chrome fittings.
The specification includes gas central heating. The communal areas have been freshly decorated, offering a welcoming first impression, and externally there is a well-tended garden with mature trees and shrubs – a delightful outdoor space for residents to enjoy. Each of the three flats in the building have a private area of garden to enjoy. A secure private garage/lock-up provides invaluable storage or secure parking, and on-street permit parking is available through Glasgow City Council.
Dowanhill is one of Glasgow’s most prestigious and picturesque West End neighbourhoods, admired for its leafy avenues, elegant period architecture, and close-knit community feel. Residents enjoy easy access to a wealth of local amenities, including the independent shops, cafés, and restaurants of Byres Road and Hyndland, as well as nearby green spaces such as the Botanic Gardens and Kelvingrove Park. Excellent public transport links, including Hillhead Subway Station and regular bus services, connect the area to the city centre and beyond, while the University of Glasgow is just a short walk away. Combining heritage, convenience, and charm, Dowanhill remains one of the most desirable places to live in the West End.
EER band D



























