Sold by Vanilla Square.
A beautifully presented second-floor apartment set within the highly sought-after Jordanhill Park development by Cala Homes, finished to an exceptional standard throughout and enjoying a private, south-facing balcony.
Surrounded by acres of landscaped parkland, the apartment offers the perfect balance of tranquil outdoor living while remaining close to the excellent amenities of Glasgow’s vibrant West End.
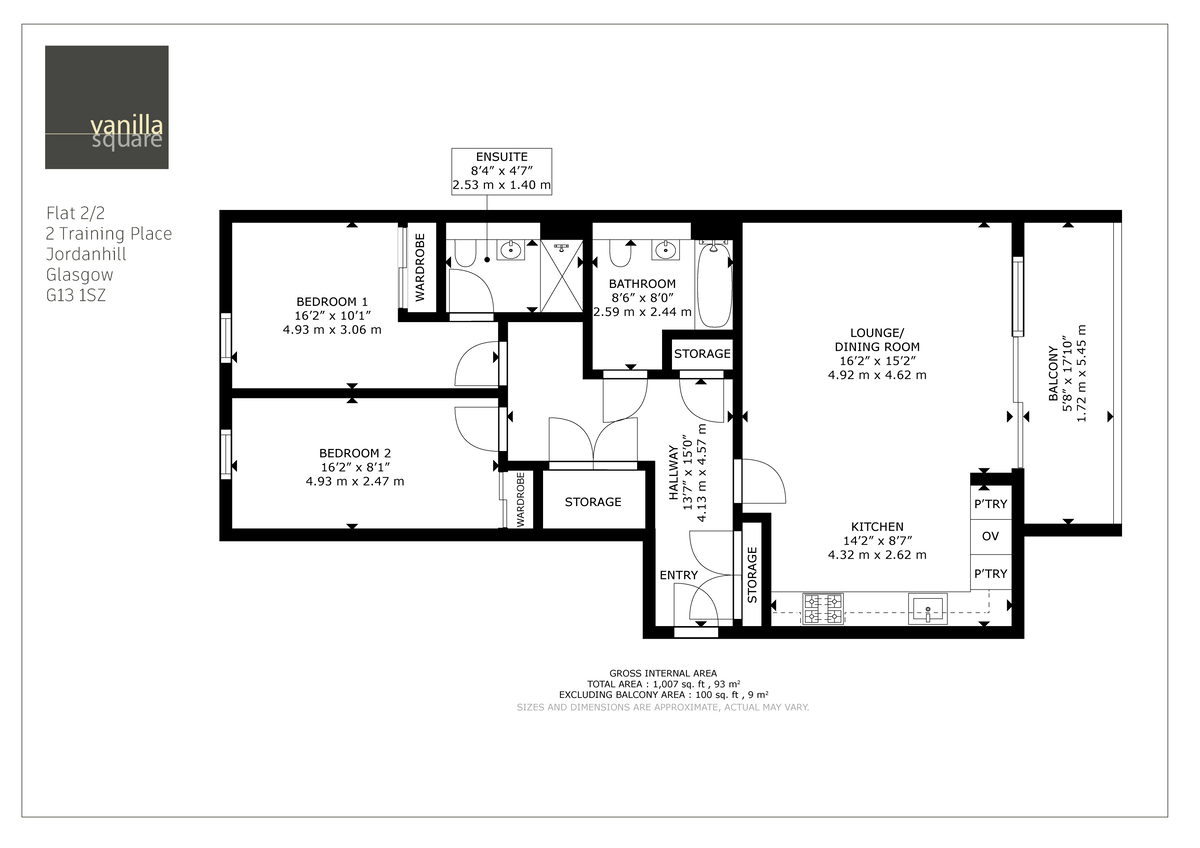
The accommodation is centred around an impressive 24ft open-plan lounge and dining room, flooded with natural light. The lounge area features doors opening directly onto the south-facing balcony, seamlessly bringing the outdoors in and creating an ideal space for relaxing or entertaining.
The kitchen is fitted with the high-quality specification synonymous with Cala Homes, including stylish wall and floor units, integrated appliances and ample space for a dining table and chairs-perfect for both everyday living and hosting guests.
To the rear of the property are two spacious double bedrooms. The principal bedroom benefits from fitted wardrobes and a contemporary en-suite shower room, while the second bedroom also features fitted wardrobes. A family bathroom completes the accommodation, finished with a fresh white three-piece suite.
Additional features include generous storage cupboards off the hallway, gas central heating, double glazing, lift access to all floors and well-maintained communal areas. Externally, the property benefits from an allocated parking space along with additional visitor parking.
This is a fantastic opportunity to acquire a stylish home in an exceptional setting.
Jordanhill is one of Glasgow’s most prestigious residential areas, renowned for its leafy surroundings, strong sense of community and excellent schooling, including the highly regarded Jordanhill School. The area offers superb transport links, with easy access to the city centre, West End and beyond, as well as a wide range of local shops, cafés and leisure facilities. Combined with the historic parkland setting of Jordanhill Park, this location offers an enviable lifestyle blending convenience, green space and architectural quality.
EER band B


























