Sold STC

Thornhill Road, Falkirk

BEDROOMS

BATHROOM

OFFERS OVER:

£100,000

DETAILS

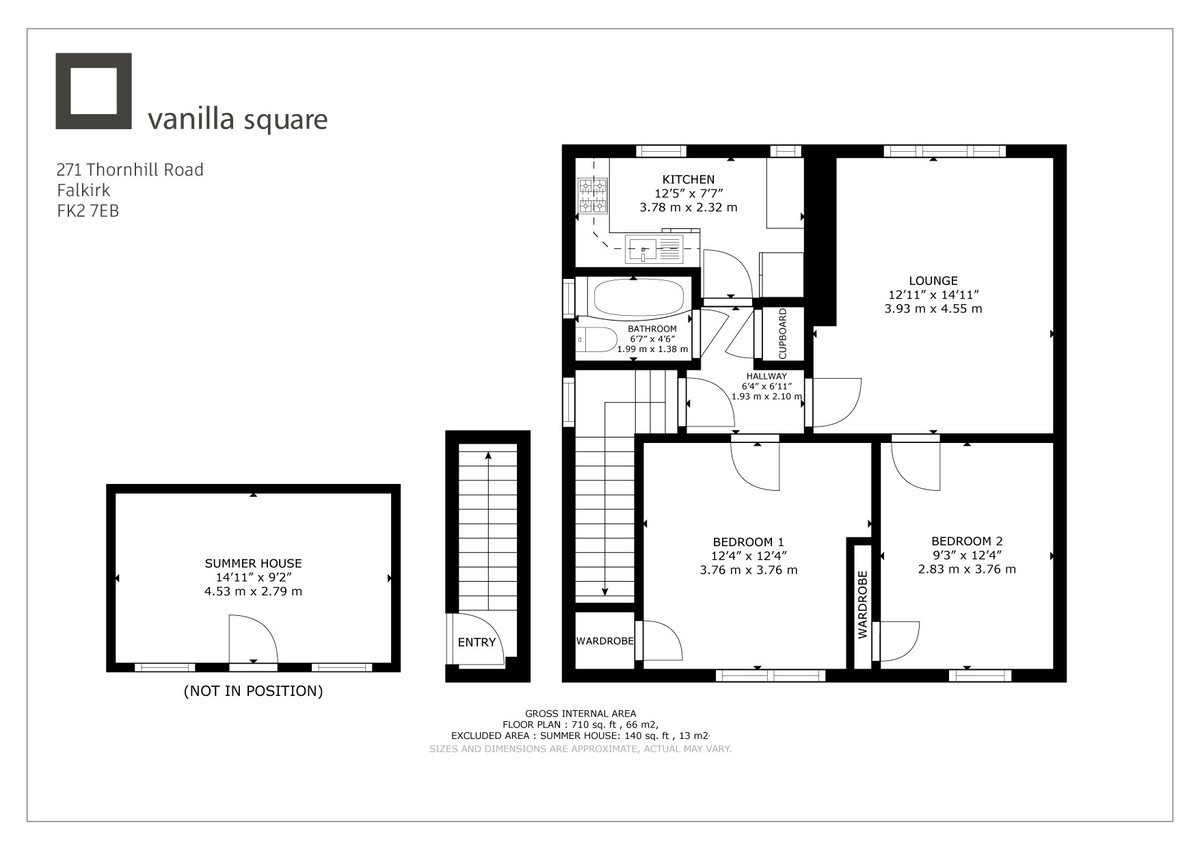
Set within a popular residential pocket of Falkirk, this well-presented upper cottage flat at 271 Thornhill Road enjoys a desirable corner plot position and offers bright, comfortable accommodation with the added benefit of private outdoor space.

The property is accessed via its own main door entrance, with stairs leading to the upper level where the accommodation is set. A welcoming hallway provides access to all apartments. The spacious lounge offers an excellent main living area with ample room for both relaxing and dining, while the fitted kitchen is well laid out with good storage and workspace.

There are two well-proportioned double bedrooms, each offering generous accommodation and flexibility for a range of buyers. The modern bathroom has been stylishly upgraded and features a three-piece suite with shower over bath.

A standout feature of this home is the private garden, which benefits from the corner plot, providing enhanced space and privacy-ideal for enjoying the warmer months. The garden is further enhanced by a summer house, perfect for home working, hobbies, or simply relaxing.

Further benefits include double glazing and gas central heating.

EER BAND C

FLOORPLANS

Floorplan

Arrange a viewing for

Thornhill Road, Falkirk
GET IN TOUCH

Floorplan

Please enter your details below and one of our team will get in touch to organise a valuation.