Sold STC

The Glendhu End Terrace, Yoker Wharf, Yoker

BEDROOMS

BATHROOMS

OFFERS OVER:

£278,995

DETAILS

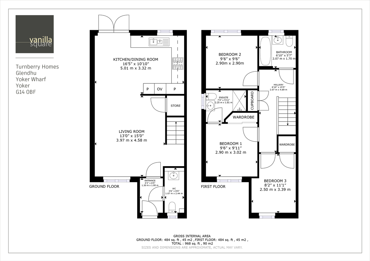
This spacious end terrace villa offers a flexible layout, ideal for couples or growing families.

The ground floor features a welcoming entrance hall and open plan living, kitchen and dining room. French doors connect seamlessly to the private garden. Under-stair storage and downstairs WC adds practicality.

Upstairs, the primary suite features an en suite bathroom and built-in wardrobe for maximum convenience, accompanied by two additional bedrooms. A separate storage space and sophisticated family bathroom complete the first floor accommodation
.
Each home is fitted with solar PV panels on the roof.

FLOORPLANS

Floorplan

Arrange a viewing for

The Glendhu End Terrace, Yoker Wharf, Yoker
GET IN TOUCH

Floorplan

Please enter your details below and one of our team will get in touch to organise a valuation.