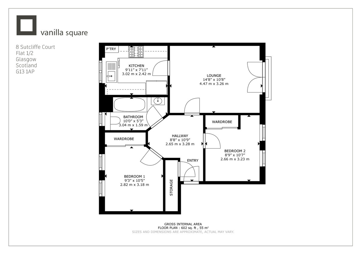
This well-presented and generously proportioned two-bedroom flat is set within a quiet residential development, offering stylish and flexible accommodation ideally suited to first-time buyers, downsizers, or buy-to-let investors.
The property is entered via a welcoming reception hallway with excellent storage, leading to a bright and spacious lounge with ample room for both relaxing and dining. The modern kitchen is well appointed with a range of contemporary units and provides good worktop space.
There are two well-proportioned bedrooms, both benefiting from fitted wardrobes. The principal bedroom offers comfortable accommodation, while the second bedroom is currently utilised as a highly practical work-from-home office, ideal for modern living. The accommodation is completed by a modern bathroom fitted with a sleek three-piece suite.
Further benefits include double glazing, electric heating, secure entry, and well-maintained communal areas. The development also offers residents’ parking and pleasant surroundings.
Sutcliffe Court is conveniently located for a range of local amenities, including shops, supermarkets, and transport links, with easy access to Glasgow City Centre and the West End. Nearby green spaces and leisure facilities further enhance the appeal of this well-positioned home.
Early viewing is highly recommended to appreciate the quality, flexibility, and convenience of this attractive property.
EER BAND C





















