Schaw House is a landmark building sitting in the heart of Bearsden with an elevated position a 5-10 minute walk or so North of Bearsden Cross. The "B" listed Gothic style mansion house sits within extensive mature gardens and grounds that are rightfully used by the residents, sitting out in fine weather and for dog walks.
Apartment 22 sits on the preferred top floor and is front facing only with open South facing views over Bearsden and Glasgow and for many miles, as far as the Whitelee Wind Farm on the Eaglesham moor.
Immediate benefits include security video entry to grand and spacious communal hallways, stairs and lift access as well as allocated private parking with two spaces (both number 22) and generous visitors parking.
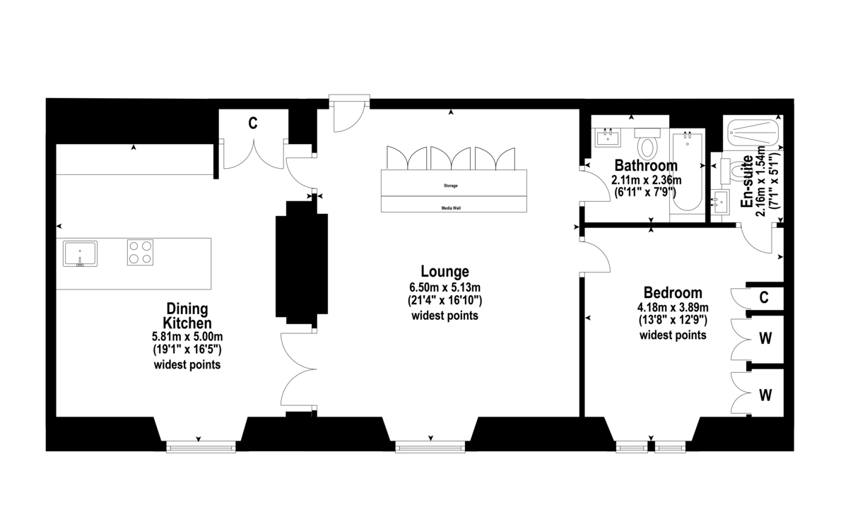
The apartment itself has been extensively upgraded in recent years and during the tenure of the current owner. The accommodation comprises hallway open to the lounge with feature media slate wall and built in storage, large refitted dining kitchen with designated dining area as well as a breakfast bar for more casual dining, generous double bedroom with built in wardrobe storage and en-suite shower room, family bathroom.
The kitchen, en-suite shower room and bathroom were all refitted to a luxury standard as recently as 2022. The kitchen offers appliances comprising AEG pyrolytic oven, microwave oven, induction hob, discreet extractor fan, two warming drawers, coffee machine, dishwasher, full height fridge/freezer and washing machine. The quartz work top is one piece and includes a raised breakfast bar and there is a Quooker boiling water tap.
The en-suite has a walk in rainfall shower and the bathroom has a shower over the bath.
The specification includes gas central heating and double glazing installed in 2023. Other upgrades include the bespoke wardrobes, all switches and sockets are Schneider Electric brushed steel, LED downlighters throughout, all door handles, locks and door fittings are Buster & Punch, in black. Slate media wall in the lounge with built in storage.
The building and gardens/grounds are beautifully maintained and managed by appointed Factor, Redpath Bruce.
To summarise, this high end apartment within the beautiful building and setting that Schaw House is offers a unique lifestyle with a superior setting and address in Bearsden with a host of amenities at Bearsden Cross including restaurants, coffee shops, a gym and Marks & Spencer. Train travel can be accessed from Bearden or Hillfoot Railway Stations. It is also worth noting that a secure gate with keycode entry at the foot of the path through the residents gardens/grounds takes you out onto Drymen Road and a bus stop immediately here gives you direct bus travel to Glasgow City Centre.
EER band C

























