Idyllic Coastal Retreat Overlooking Calgary Bay.
Sands Cottage is a charming and newly renovated property situated in the picturesque village of Calgary on the Isle of Mull.
Set against the stunning backdrop of Calgary Bay, Sands Cottage is a beautifully traditional home believed to date back to the late 1800s. This charming property offers breathtaking, uninterrupted views and a peaceful lifestyle on the Isle of Mull’s picturesque northwest coast.
Within the extensive refurbishment is a new roof, refitted kitchen and luxury en-suite, fresh decor throughout to name but a few. Now offered o the market in true walk-in condition.
Accommodation
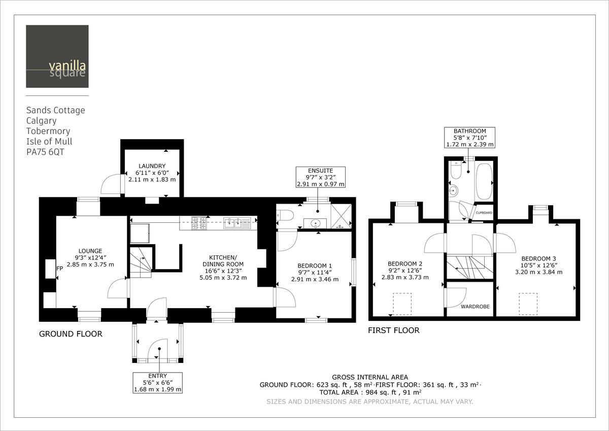
This delightful cottage is arranged over one and a half storeys and features three spacious double bedrooms, including a ground-floor principal suite with refitted en-suite shower room. Entry is via a welcoming porch leading into a central hallway, with a gorgeous refitted dining kitchen featuring a stone accent wall and a range of high quality wall and floor units and integrated appliances.
The lounge is a standout feature, offering dual-aspect views, a cosy wood-burning stove, and ample space for relaxing or entertaining.
Upstairs, you’ll find two further double bedrooms, each with vaulted ceilings and skylights that flood the rooms with natural light. A family bathroom with fresh white three piece suite completes this level.
Outdoor Space
Surrounded by well-maintained gardens, mainly laid to lawn and bordered by neat hedging, the exterior is as charming as the interior. A patio with picnic bench makes the most of the scenic setting. There is also an external laundry/store room, a garden shed, and a wood store-perfect for island living. There is also parking for two cars across the road.
Location
Sands Cottage enjoys a prime coastal position with uninterrupted views over Calgary Bay. The hamlet of Calgary is renowned for its natural beauty and sandy beach, making it a highly sought-after location- a perfect spot for a morning dip.
The Isle of Mull, shaped by ancient volcanic activity, is celebrated for its dramatic landscapes, abundant wildlife, and rich marine life. It’s a paradise for nature lovers, bird watchers, and walkers of all levels.
Nearby Tobermory, the island’s colourful capital, is just 11 miles away and offers a full range of amenities, from shops and restaurants to cultural attractions including a whisky distillery, museum, and theatre. Its famous harbourfront, painted in vibrant colours, has become an iconic image of the island.
EER band F



































