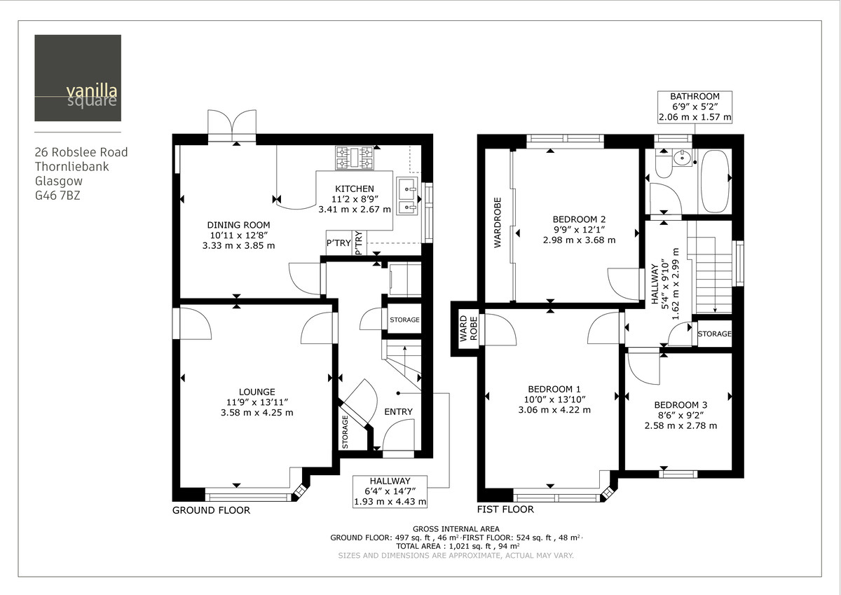
This upgraded semi-detached villa enjoys a prime position within the ever-popular Thornliebank area of Glasgow’s Southside. Offering generous accommodation and stylish interiors, this impressive home is perfectly suited to modern family living.
A welcoming entrance hallway sets the tone for the property, leading through to a spacious front-facing lounge, ideal for relaxing or entertaining. To the rear, the home boasts a re-designed and refitted kitchen, thoughtfully created as a fabulous entertaining space. It features quality wall and floor units, complementary worktops, integrated appliances and a striking Range-style cooker. A breakfast bar provides casual dining space, while there is ample room for a large dining table and chairs. French doors open directly onto the rear gardens, seamlessly blending indoor and outdoor living.
Upstairs, there are three spacious bedrooms, including a principal bedroom with fitted wardrobes providing excellent storage. The refitted bathroom is finished in a fresh white three-piece suite with an over-bath shower.
Further benefits include gas central heating and double glazing.
Externally, the property enjoys wonderful sunny rear gardens, perfect for families or outdoor entertaining in fine weather. A driveway to the front and side provides excellent off-street parking and leads to a detached garage.
Thornliebank is a highly regarded residential area in Glasgow’s Southside, popular with families and professionals alike. The area offers a wide range of local amenities, including shops, supermarkets, cafes and leisure facilities, along with excellent transport links by road and rail providing easy access to Glasgow City Centre and beyond. Thornliebank is also well served by highly regarded local schooling, making it an ideal location for growing families.








































