This impressive top floor tenement flat enjoys a prime position within the much-admired Queensborough Gardens, right in the heart of Hyndland. The property combines traditional West End charm with tasteful modern upgrades, making it an ideal home for those seeking both character and comfort. Entry is via a secure door entry system into a well-maintained communal hallway and stairwell, which reflects the care and attention given to the building as a whole.
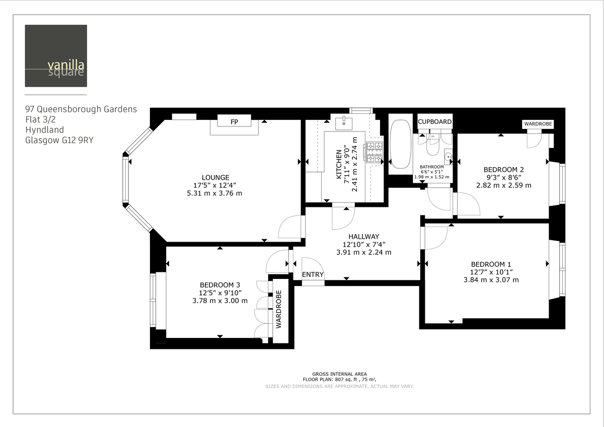
The flat itself is accessed through a welcoming entrance hallway, finished with attractive original wooden flooring, which leads to the main apartments. The lounge is a particularly bright and generous space, enhanced by a large bay window that floods the room with natural light. A feature fireplace provides a focal point and adds to the period charm, while the proportions make it an excellent space for both relaxing and entertaining.
The kitchen has been thoughtfully designed to balance style and practicality. It is fitted with quality wall and floor units, a Belfast sink, modern worktops, sleek metro tiled splashbacks and a range of integrated appliances, offering everything needed for contemporary living. The three bedrooms are all well-proportioned and provide flexibility for use as a home office, dining room, or guest accommodation. The bathroom is finished with a classic white three-piece suite, including a large bath and an overhead shower, creating a clean and modern feel.
The specification includes gas central heating and security controlled entrance. There is ample integrated storage throughout the property.
Externally, the property benefits from access to well-tended south-facing communal gardens to the rear, ideal for enjoying outdoor space in a peaceful setting. Parking is available via on-street permit arrangements, while the excellent location means that public transport is also on the doorstep, with Hyndland train station just a short walk away. The flat is further enhanced by its proximity to an excellent range of local shops, cafés, bars and amenities, ensuring convenience as well as a vibrant lifestyle.
Hyndland is one of Glasgow’s most desirable West End neighbourhoods, renowned for its elegant red and blonde sandstone tenements, leafy avenues and welcoming community feel. It offers an enviable balance of residential charm and city convenience, making it popular with professionals, families and students alike.
The location is further enhanced by proximity to some of the West End’s finest green spaces, including the Botanic Gardens and Kelvingrove Park, as well as cultural attractions such as the Kelvingrove Art Gallery and Museum. With highly regarded schools, local services and a strong sense of community, Hyndland remains one of the most sought-after addresses in the West End and a wonderful place to call home.
EER band D






























