Sold by Vanilla Square.
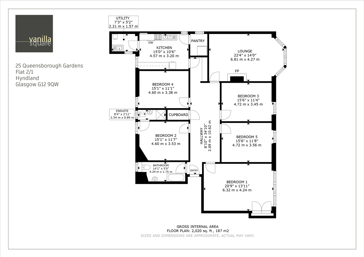
An exceptionally spacious five-bedroom flat occupying the second floor of a handsome red sandstone tenement in the heart of Hyndland, with uninterrupted views over the Hyndland Bowling Club. Extending to just over 2,000 sq ft, this impressive home offers generous proportions, timeless period features, and versatile accommodation in a prime West End location.
A grand 34ft entrance hallway sets the tone for the property, leading to a beautiful formal lounge with a large bay window that floods the room with natural light and frames a beautiful outlook over the bowling green.
The well-appointed kitchen features a range of fitted wall and floor units with ample room for a large dining table – perfect for family gatherings or entertaining. Off the kitchen, there is a separate pantry and a utility room, adding valuable storage and functionality.
Each of the five large double bedrooms offers flexibility for use as sleeping accommodation, home office space, or additional reception rooms. One of the bedrooms has an en-suite shower room, while the main bathroom is fitted with a fresh white three-piece suite and an over-bath hand shower.
The property is full of period charm, with high ceilings, detailed cornicing, and original woodwork throughout. The specification includes gas central heating, a secure entry system, and exceptionally well-maintained communal areas, including a delightful rear garden.
On-street permit parking is available via Glasgow City Council.
Hyndland is one of Glasgow’s most prestigious and sought-after neighbourhoods, renowned for its elegant architecture, peaceful tree-lined streets, and strong sense of community. Located in the heart of the West End, it boasts a selection of independent cafes, specialist shops, and well-regarded schools, all within walking distance. Excellent transport links, including Hyndland train station, provide easy access to the city centre and beyond, while nearby parks and green spaces add to the area’s enduring appeal.
EER band C








































