Sold by Vanilla Square.
A smart and stylish two-bedroom ground floor flat set within a beautifully maintained modern development in the ever-popular Waverley Park area. This luxurious home is offered in true walk-in condition and enjoys a prime position just moments from the vibrant heart of Shawlands, with an array of shops, bars, cafes, and restaurants right on the doorstep.
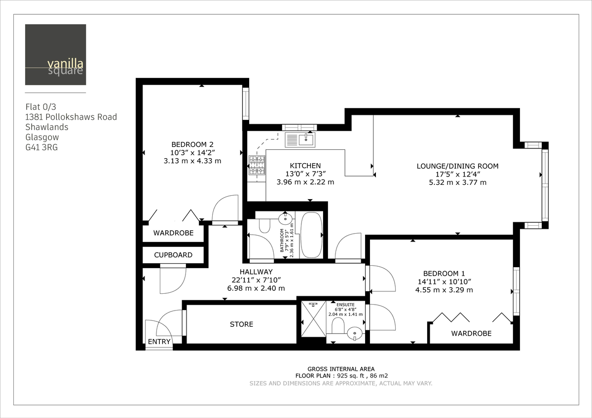
The accommodation is bright and generously proportioned throughout, with a spacious 17’5 lounge featuring a striking box bay window to the front, allowing natural light to flood the room throughout the day. The lounge is open plan to a stunning contemporary kitchen, fitted with sleek high-quality wall and floor units, integrated appliances – including a wine fridge – and a stylish breakfast bar ideal for casual dining or entertaining.
The large principal bedroom benefits from fitted wardrobes and a modern en-suite shower room. A well-proportioned second double bedroom also features built-in wardrobes, while the elegant guest bathroom is finished with a pristine white three-piece suite and an over-bath shower.
Additional features include two handy storage cupboards off the hallway, beautifully maintained communal areas and landscaped gardens, and private residents’ parking within the development. With excellent public transport links close by, this property offers both style and convenience in equal measure. The specification also includes gas central heating, double glazing and security controlled entrance.
Shawlands is one of Glasgow’s most sought-after neighbourhoods, known for its vibrant community feel and eclectic mix of amenities. From independent coffee shops and trendy eateries to boutique stores and local markets, Shawlands offers a lifestyle that’s both lively and laid-back. Excellent transport links make it easy to get around the city, with frequent train and bus services connecting to Glasgow City Centre and beyond. The area also boasts close proximity to beautiful green spaces such as Queen’s Park, making it perfect for outdoor enthusiasts. Whether you’re after culture, convenience, or community, Shawlands delivers it all.
EER band B
























