This semi-detached home offers a flexible layout, ideal for couples or growing families.
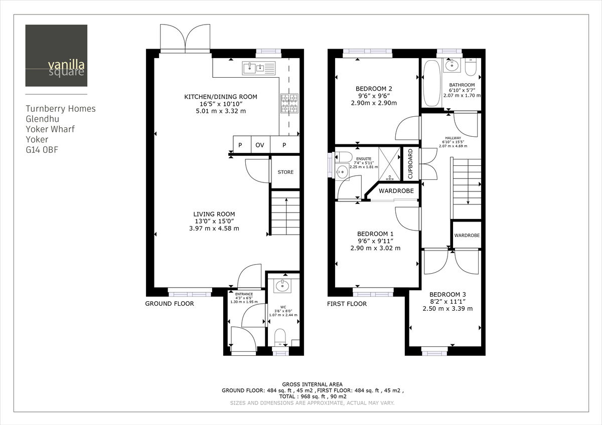
The ground floor features a welcoming entrance hall and open plan living, kitchen and dining room. French doors connect seamlessly to the private garden. Under-stair storage and downstairs WC adds practicality.
Upstairs, the primary suite features an en-suite bathroom and built-in wardrobe for maximum convenience, accompanied by two additional bedrooms. A separate storage space and sophisticated family bathroom complete the first floor accommodation.
Each home is fitted with solar PV panels on the roof.
Turnberry Homes brand new Yoker development boasts a waterside location on the banks of the River Clyde. You can choose from a range 3-bedroom terraced and semi-detached homes, as well as spacious 4-bedroom detached residences. Additionally, contemporary 2-bedroom apartments will soon be available. With limited homes available to move into this year be sure to get in touch to find the perfect fit for your lifestyle.
With excellent links via road and public transport to Glasgow city and further afield, the location is ideal for daily commutes, as well as weekend activities. Yoker train station is just a 10 minute walk away.
Living here you have a wide variety of amenities within easy reach. There are a wealth of restaurants and bars, with shopping centres nearby in Knightswood and Clydebank. Braehead is just 11 miles away, offering a wide variety of activities, including ice hockey, food & drink, cinema, and shopping.
There are multiple pre-school facilities available locally, alongside both denominational and non-denominational primary and high schools.























