Sold by Vanilla Square.
A truly exceptional detached family home, originally designed by the renowned architect Austin Laird, occupying a prime and enviable position within the heart of Kilmacolm. Set within beautiful, leafy and private surroundings, this impressive residence has been significantly extended and comprehensively upgraded, resulting in a home that effortlessly blends original period character and architectural charm with contemporary luxury and comfort.
Offering spacious, flexible and thoughtfully designed accommodation, the property is perfectly suited to modern family life and entertaining on any scale. Electric gates open to a sweeping gravel driveway, creating an immediate sense of arrival and exclusivity.
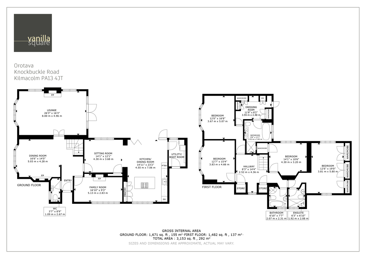
A magnificent and welcoming entrance hallway forms the hub of the ground floor, seamlessly connecting the principal living spaces. To the rear, the formal lounge is a stunning room with triple aspects overlooking the gardens, featuring a stylish gas-burning fire, bespoke media unit and doors opening directly onto the patio – ideal for indoor-outdoor living. The formal dining room, located close by, is perfect for hosting large family gatherings and dinner parties, with a charming side bay window and an attractive open fireplace.
A cosy and versatile family room, complete with a log-burning stove, offers excellent flexibility and could be used as a snug, home office, fifth bedroom or a relaxed movie room for family evenings.
The dining kitchen truly is the heart of the home, fitted with high-quality wall and floor units, integrated appliances and a central island with breakfast bar. There is ample space for a dining table and chairs, and the kitchen flows naturally into a delightful sitting area. Bi-folding doors open onto the rear patio, flooding the space with natural light and creating the perfect setting for summer entertaining and BBQs. The generous patio connects both the kitchen and the formal lounge, making entertaining effortless and sociable.
The ground floor is completed by a practical utility room and a WC/cloakroom. It is worth noting that the kitchen, lounge, sitting room and utility room all enjoy under-floor heating.
On the upper level, the principal bedroom suite is a serene and luxurious retreat, enjoying dual aspects and a peaceful outlook over the grounds. A spectacular walk-in dressing room with fitted wardrobes leads to a beautifully appointed en-suite bathroom, featuring a five-piece suite including a freestanding bath, double vanity unit, a large walk-in shower and under-floor heating.
There are three further well-proportioned double bedrooms, one of which benefits from its own en-suite shower room. A stylish family bathroom completes the upper level, offering a four-piece suite with both bath and separate shower.
Additional features include gas central heating and double glazing. There is also a large, floored loft providing valuable storage space.
The gardens are quite exceptional, wrapping around the property and offering outstanding privacy, enclosed by mature trees and hedging. An expansive lawn provides space for children to play, while the pitch and putt will delight golf enthusiasts. The outdoor sauna adds a unique and luxurious touch, creating a private wellness retreat at home.
To the front, the property offers extensive off-street parking for multiple cars on the secure driveway, along with a detached wooden garage providing secure parking and excellent storage. There is also an EV charging point installed for electric cars.
This is a rare and distinctive family home, offering space, privacy, luxury and lifestyle in equal measure – a true one-off.
Kilmacolm is widely regarded as one of Inverclyde’s most desirable villages, celebrated for its strong community spirit, excellent schooling and picturesque surroundings. The village centre offers a charming selection of independent shops, cafés and restaurants, along with everyday amenities and leisure facilities. Families are particularly drawn to the area due to its highly regarded primary and secondary schools, while outdoor enthusiasts will appreciate the abundance of scenic countryside walks and nearby golf courses. With excellent transport links to Glasgow and beyond, Kilmacolm perfectly combines village living with convenient accessibility, making it an outstanding place to call home.
EER band C




























































