Sold by Vanilla Square
A beautiful one bedroom, first floor flat in a prime location in Glasgow’s West End. Set just off the vibrant Argyle Street with a vast array of trendy shops, bars and restaurants on its doorstep as well as easy access to the OVO Hydro, the City Centre and the University of Glasgow. The location of this flat as well as its spacious accommodation will suit a wide range of buyers and it is offered to the market in walk-in condition.
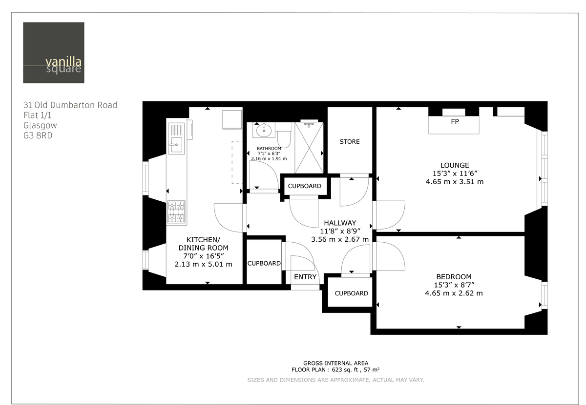
The internal accommodation comprises; welcoming entrance hallway with three storage cupboards off. The lounge has been freshly decorated and it has three large windows to the front that flood the room with natural light throughout the day. The kitchen extends the full width of the flat and is set to the rear. It has fresh, modern white wall and floor units and integrated gas hob and oven. There is plenty of space in the kitchen for a dining table and chairs providing a great place for entertaining. There is a spacious double bedroom with wonderful wooden shutters, and completing the accommodation is an upgraded shower room (2021) with beautiful white three piece suite.
The specification incudes gas central heating (new boiler December 2018), double glazing and security controlled entrance. The communal areas are well maintained including the rear courtyard. On-street permit parking is available through Glasgow City Council.
EER band C

















