Sold by Vanilla Square.
A beautifully presented and characterful two-bedroom flat occupying the ground floor of a handsome sandstone tenement in the ever-popular Yorkhill area of Glasgow’s vibrant West End. This exceptional property offers a unique and quirky layout, combining period charm with modern living, and is perfectly suited to young professionals, first-time buyers, or students seeking stylish and spacious accommodation in a prime location.
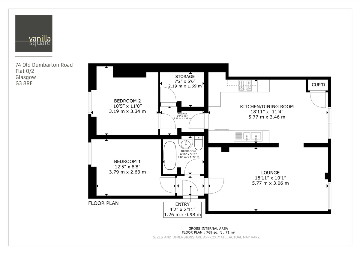
The welcoming hallway leads into a generously proportioned lounge, which seamlessly opens into a bright and expansive dining kitchen-an ideal space for hosting friends or relaxing at home. Both rooms are enhanced by rich wooden flooring, adding warmth and continuity to the living space. The kitchen itself is well-appointed with quality wall and floor units, excellent worktop space, and ample room for a full dining table, making it the heart of the home.
To the rear of the property, you’ll find two generously sized double bedrooms, offering peace and privacy away from the street-ideal for restful nights or quiet study. The modern bathroom is tastefully finished with a crisp white three-piece suite, classic metro tiling, and sleek chrome fittings, creating a fresh and contemporary feel. There is a useful storage room/ study cupboard.
Additional features include efficient gas central heating, double glazing throughout, and a secure entry system for added peace of mind. On-street permit parking is available through Glasgow City Council.
This fantastic flat is a rare find in one of the West End’s most desirable pockets, offering both character and convenience in equal measure.
Yorkhill is a lively and sought-after neighbourhood in Glasgow’s West End, known for its blend of traditional tenement charm and contemporary urban lifestyle. Just a short walk from Finnieston, Kelvingrove Park, and the bustling Byres Road, the area offers a wealth of cafes, bars, restaurants, and cultural attractions. Excellent transport links and proximity to universities and hospitals make Yorkhill a convenient and desirable location for a wide range of buyers.
EER band C




















