Forming part of a landmark red sandstone B-listed building, originally constructed circa 1913 and named in honour of educational pioneer David Stow, this attractive one-bedroom apartment offers an exceptional blend of period character and contemporary living.
The former educational institution has been sympathetically converted by Cala Homes into a high-quality residential development, carefully preserving the building’s historic identity while introducing modern design and finishes throughout.
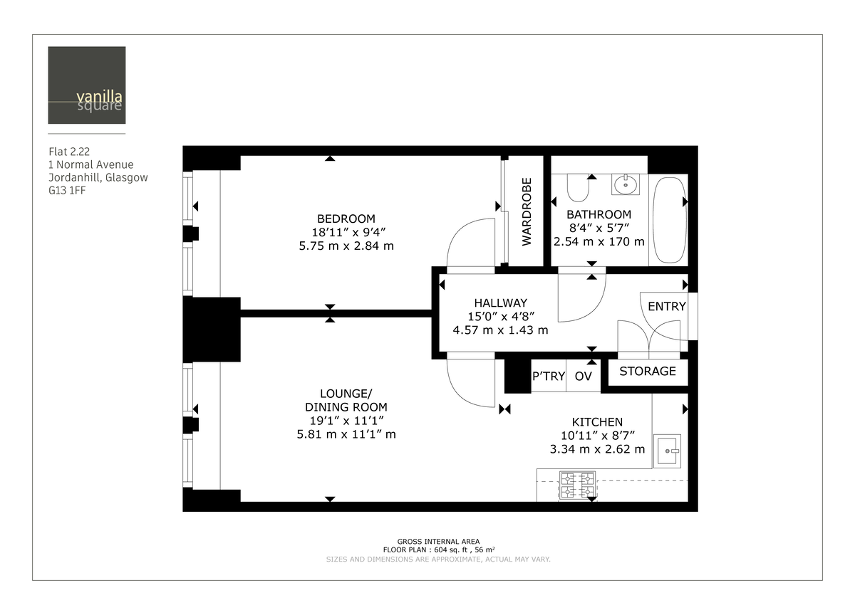
The apartment is bright and well proportioned, enjoying a peaceful outlook over a secluded internal courtyard with seating and established shrubs. Internally, the property features a stylish open-plan kitchen and dining area, ideal for modern lifestyles, with electric blinds fitted to both the living area and bedroom for added comfort and convenience. The bedroom further benefits from fitted wardrobes providing excellent storage, while a useful utility cupboard is located off the welcoming hallway. A modern bathroom and clean, contemporary finish complete the accommodation, which is further enhanced by underfloor heating throughout.
Additional benefits include beautifully maintained communal areas, lift access, and an allocated private parking space. The development also offers a dedicated dome room with bicycle racks, along with a privately allocated individual storage cage, providing valuable additional storage.
Ideally positioned within the highly sought-after Jordanhill area of Glasgow’s West End, the property is conveniently located close to local amenities, excellent transport links, and nearby green spaces.
EER BAND C



















