Forming part of the highly sought-after Jordanhill Park development by Cala Homes, this stunning one-bedroom ground floor apartment offers exceptional contemporary living in one of the West End’s most desirable settings. Finished to the impeccable standard synonymous with Cala, the property combines stylish design, premium specification, and an enviable location surrounded by leafy tranquillity.
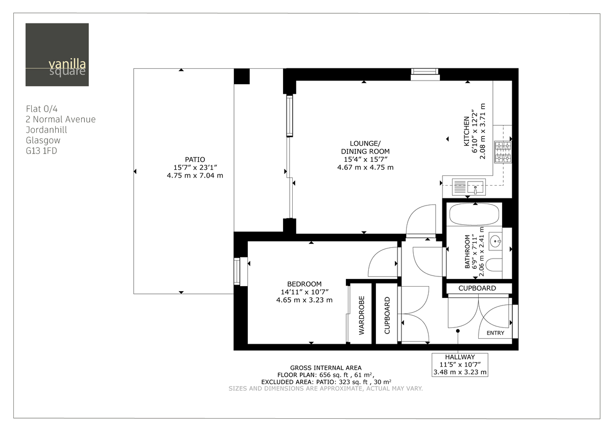
The accommodation comprises a spacious open-plan living room and kitchen extending to over 22ft, with dual aspect windows flooding the space with natural light. The lounge area opens directly onto a private south-west facing front terrace, creating a wonderful sense of indoor-outdoor living – perfect for relaxing or entertaining on warm evenings. The kitchen is fitted with high-quality Nolte kitchens wall and floor units, complimenting Silestone worktops, and a full range of integrated siemens appliances.
The generous double bedroom benefits from fitted wardrobes, while the beautifully appointed bathroom features a crisp white Laufen three-piece suite, over-bath shower, and stylish chrome fittings. The specification further includes gas fired underfloor central heating, double glazing, and a security-controlled entrance.
A particular highlight of this apartment is the private south west terrace, which offers both a covered decked area – ideal for a morning coffee whatever the weather – and a low-maintenance garden space finished with stone chips and bordered by mature hedging for privacy. An added bonus is the private parking space that comes with the apartment.
Set within the historic grounds of the former Jordanhill College, Jordanhill Park has quickly become one of Glasgow’s most prestigious residential addresses. The development enjoys a peaceful, leafy setting with landscaped parkland and walking routes, yet lies only moments from the vibrant West End – home to an array of shops, cafés, bars, and restaurants. Excellent public transport links and road connections provide easy access to the city centre and beyond. The area also benefits from access to top-performing local schools, making it attractive to a wide range of buyers.
EER band B



























