A beautifully presented two-bedroom ground floor flat with the rare benefit of a private front garden, ideally located in the heart of vibrant Shawlands.
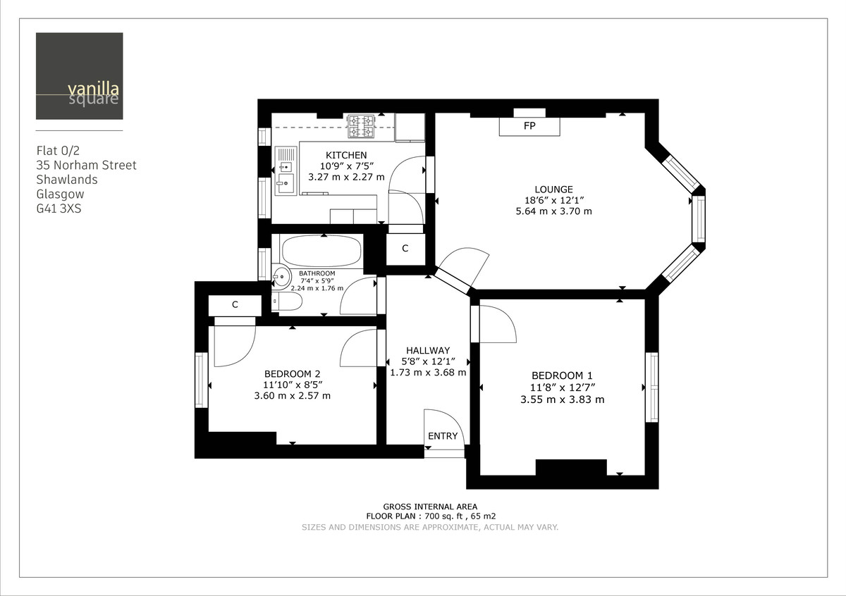
The accommodation comprises a welcoming reception hallway, a bright and spacious bay window lounge with views onto the garden, a modern fitted kitchen complete with ample storage, generous worktop space and a large walk-in closet/pantry, two well-proportioned double bedrooms, and a stylish bathroom with contemporary three-piece suite.
Externally, the property boasts its own enclosed front garden, perfect for relaxing or entertaining, and further shared gardens to the rear.
Set within one of Glasgow’s most sought-after neighbourhoods, the property enjoys close proximity to an excellent selection of local shops, cafés, bars and restaurants. Queens Park is just a short stroll away, offering open green space and leisure opportunities, while outstanding public transport links – including nearby train stations and regular bus services – provide swift access to Glasgow City Centre and beyond.
This property will appeal to a wide range of buyers, particularly first-time purchasers and young professionals.
EER BAND D





















