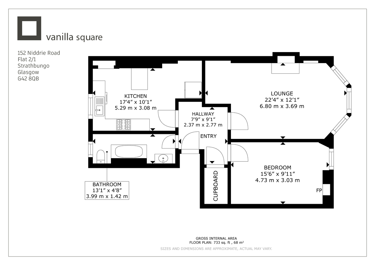
An absolutely stunning second floor flat, set within a traditional tenement in the heart of the highly sought-after Strathbungo district on the south side of Glasgow, this beautifully presented home offers a perfect blend of period charm and modern living.
The property is accessed via a well-maintained communal close and opens into a welcoming reception hallway with useful storage. To the front, a bright and spacious lounge enjoys open aspects, creating an ideal space for both relaxing and entertaining. To the rear, the impressive dining kitchen is well laid out with a range of base and wall-mounted units, offering an excellent space for hosting and everyday living.
The double bedroom is generously proportioned, while the bathroom has been beautifully renovated to a high standard, providing a stylish and contemporary finish.
Further benefits include gas central heating and access to a communal rear garden.
Strathbungo is widely regarded as one of the South Side’s most desirable neighbourhoods, offering a vibrant mix of independent cafes, restaurants, and local amenities, as well as excellent transport links providing easy access to the city centre. Nearby Queen’s Park also offers a fantastic range of outdoor space and leisure facilities.
EER BAND D






















