Set at the foot of Glasgow’s prestigious Park District, nestled between the verdant expanse of Kelvingrove Park and the vibrant heart of the City Centre, this exquisite converted townhouse presents a rare opportunity to acquire a property of remarkable quality, charm, and architectural significance.
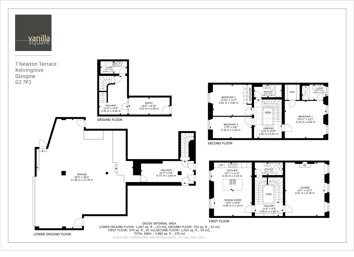
Accessed via a private main door entrance, you are welcomed into a grand reception hallway that sets the tone for the rest of the home. Rich in period detail, the hallway showcases elaborate original cornicing adorned with gold leaf, soaring ceilings, and an elegant sweeping staircase that creates a dramatic first impression.
Midway up the staircase, a cleverly positioned utility room adds everyday practicality without compromising the aesthetic or flow of the space.
Occupying the first floor is a magnificent front-facing lounge – a truly statement space. Bathed in natural light through three large sash windows, this room features further gold leaf cornicing, a striking feature fireplace, and generous proportions that allow for effortless entertaining or relaxation.
To the rear, the stylish kitchen is both functional and fashionable. Renovated around 2019, it offers a superb combination of high-quality wall and floor units, sleek integrated appliances, and a central island. Bright and spacious, there’s ample room for a full dining table, making it perfect for hosting and everyday living alike.
Continuing upward, a beautiful mid-level shower room provides a chic and convenient facility, finished with a quality three-piece suite.
The upper floor of the property is illuminated by a stunning Cupula – a skylight feature that floods the landing with natural light and highlights the architectural drama of the upper hallway.
The principal bedroom suite is situated to the front and offers a true sense of luxury. It boasts a walk-in dressing room and an elegant en-suite shower room with contemporary fixtures and finishes. Two further double bedrooms provide excellent accommodation, one of which includes fitted wardrobes for added convenience.
Completing the internal layout is a stylish family bathroom with a fresh white three-piece suite and a skylight, ensuring the space remains bright and inviting.
This home is a rare blend of period grandeur and modern refinement. With ornate original detailing, thoughtful updates throughout, and a finish that balances character with contemporary luxury, it stands as arguably the most impressive of its kind within the Park District.
Further benefits include gas central heating, a highly coveted private space within the shared garage (accessible directly from the property), and a dedicated storage cupboard – practical additions that enhance daily life.
Truly one-of-a-kind, this is a very special property that offers an unrivalled standard of living in one of Glasgow’s most desirable addresses.
EER band C










































