Set in one of the West End’s most desirable residential areas, this substantial four-bedroom mid-terrace villa offers outstanding family accommodation over three levels, and is located just moments’ walk from the highly acclaimed Jordanhill School (List 1 catchment). Rarely available and thoughtfully extended to the rear, this home combines versatile accommodation with modern family living in an unbeatable location.
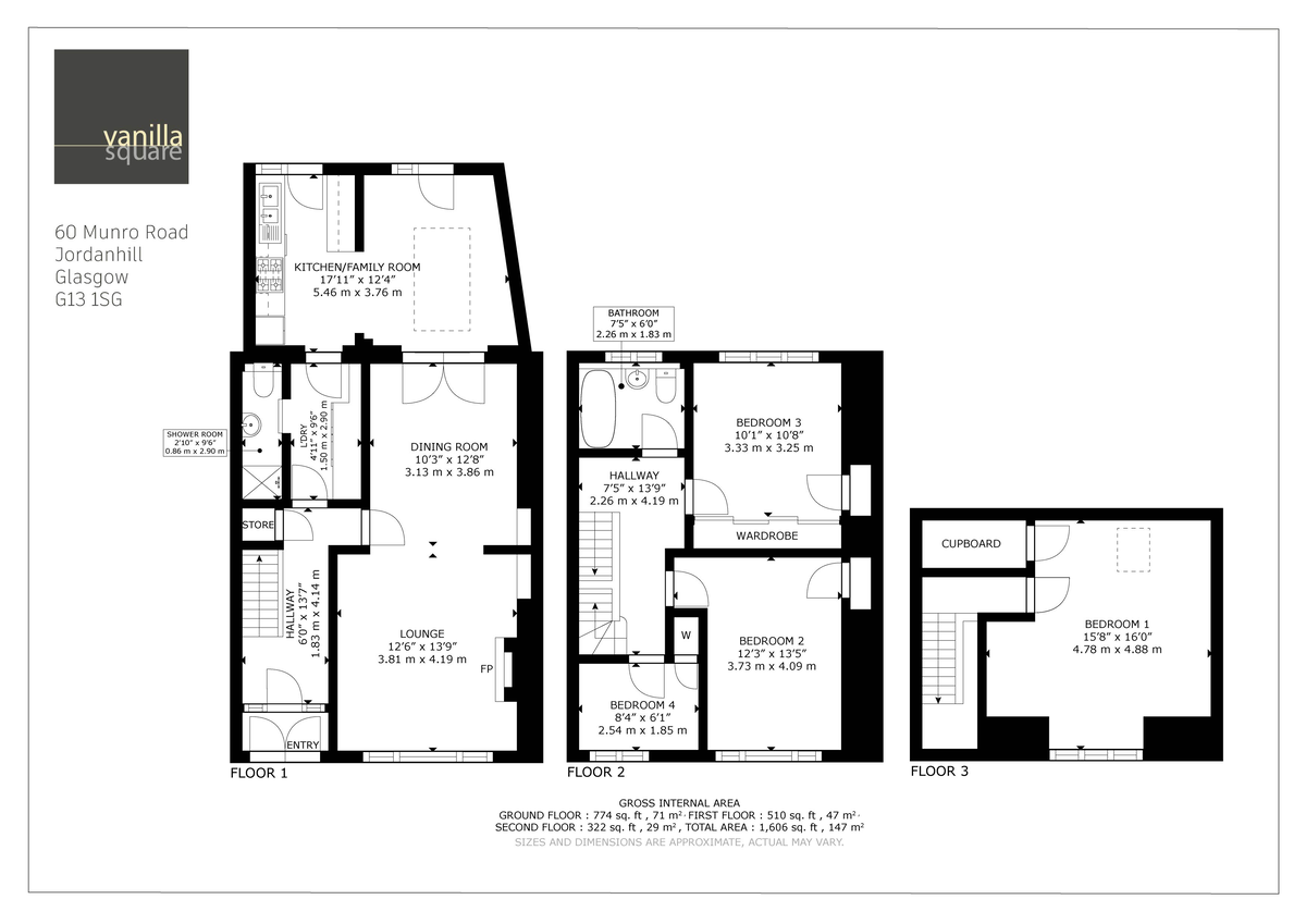
The property is entered via a broad and welcoming entrance hallway with stairs leading to the upper levels. To the front, a magnificent double length living area encompasses a lounge featuring a beautiful gas fireplace and spacious open plan dining room, ideal for family life and entertaining. The large windows allow natural light to flood the space throughout the day.
From the dining room, double doors lead into a fabulous extended kitchen and family room to the rear. This bright and spacious room is the heart of the home, with ample space for a casual sitting area and a roomy dining area. The newly installed contemporary kitchen is fitted with stylish wall and floor units, complementing quartz worktops and integrated appliances. There is a back door from the kitchen as well as double French doors opening onto the rear gardens.
Completing the ground floor is a highly practical utility room and a sleek modern shower room with a fresh white three-piece suite.
Upstairs, the first floor offers two generous double bedrooms (one with fitted wardrobes), a third single bedroom or ideal home office with additional storage, and a recently renovated stunning family bathroom with a striking standalone bath and contemporary finishes.
A second staircase leads to the top level, where a bright and spacious double bedroom with dual-aspect windows makes a perfect principal suite, guest room or teenager’s retreat.
The property further benefits from gas central heating (new boiler installed May 2025) and double glazing throughout.
Externally, the beautifully landscaped rear gardens are a major feature, offering two areas of lawn and two separate patios – perfect for outdoor dining, children’s play, or relaxing in the sun. The property has a large garage and there is ample on-street parking available for residents and visitors.
Jordanhill is widely regarded as one of the most sought-after areas in Glasgow’s West End, renowned for its peaceful residential streets, excellent local amenities, and outstanding schooling. At the heart of the area is Jordanhill School ranked as Scotland’s top-performing state school for the past nine years, making properties in the catchment area especially attractive to families. Excellent transport links, nearby parks, sports facilities, local cafes and restaurants and easy access to the city centre, ensures Jordanhill offers the perfect blend of family-friendly living with the convenience of urban life.
EER band C











































