A truly unique and characterful three-bedroom duplex apartment forming part of one of Glasgow’s landmark and most iconic buildings. This impressive sandstone property was originally commissioned by the Co-Operative Society as their headquarters in the late 1880s and was designed in a distinctive French Renaissance style, featuring elegant four-storey pavilions capped by square domes that rise into the city skyline, a true architectural gem in the heart of Tradeston.
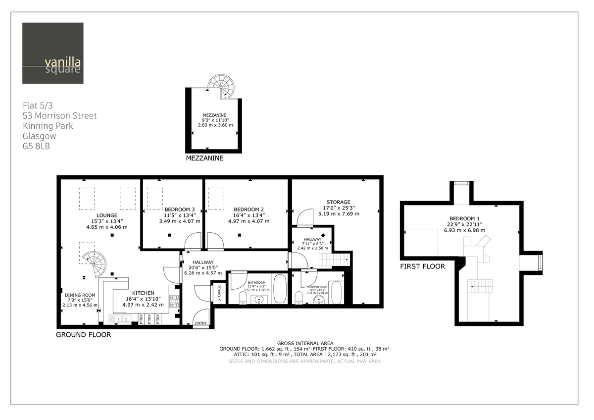
This outstanding top-floor flat perfectly blends historic grandeur with modern design and versatile living space. Beautifully presented throughout, the accommodation comprises a welcoming reception hallway leading to a bright and spacious open-plan lounge, kitchen, and dining area – ideal for contemporary living and entertaining. A striking mezzanine snug overlooks this space, offering a relaxing retreat or stylish home office.
There are three generous bedrooms, including a stunning and highly rare corner attic bedroom flooded with natural light and offering elevated views across the surrounding area. The property also features a modern family bathroom, an additional shower room with WC, and a large storage room currently utilised as a fourth bedroom, providing excellent flexibility.
Further benefits include lift access, secure underground parking, gas central heating, double glazing, and secure entry.
This exceptional home presents a rare opportunity to own a piece of Glasgow’s architectural history, combining impressive proportions, striking period features, and modern convenience, all within easy reach of the City Centre, Clyde Waterfront, and excellent transport links.
EER BAND C



























