Mitchell Street, City Centre

BEDROOMS

BATHROOMS

OFFERS OVER:

£220,000

DETAILS

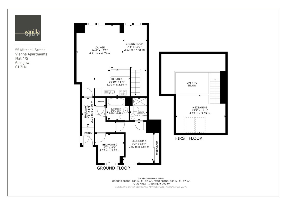
A fabulous three-bedroom flat set within the sought-after Vienna Apartments in the heart of Glasgow’s City Centre. Positioned on the fourth floor, this superb property offers an exceptionally central location where everything you could possibly need is quite literally on your doorstep. From an outstanding selection of shops, bars and restaurants to the renowned Style Mile on Buchanan Street, the very best of city living is within easy reach. Glasgow Central Station is also moments away, making this an ideal base for commuters and those who enjoy the convenience of city life. The building itself is smart and well maintained, and the property will appeal to a wide range of buyers including first-time buyers, young professionals and students.

The accommodation begins with a welcoming entrance hallway leading through to an incredible open-plan living space. The bright and spacious open-plan lounge, dining and kitchen area creates a fantastic social hub, complemented by a modern fitted kitchen. Off the lounge, a staircase leads to a mezzanine bedroom which could equally be used as a second sitting room or home office, offering excellent flexibility to suit different lifestyles.

There are two further generously sized bedrooms, including a principal bedroom with fitted wardrobes and its own en-suite shower room. Completing the accommodation is a stylish bathroom fitted with a fresh white three-piece suite. Additional features include electric heating, double glazing, a security-controlled entrance system, and lift access to all floors for added convenience. The building also benefits from well-maintained communal areas.

Glasgow City Centre is one of the UK’s most vibrant urban hubs, offering an exceptional mix of culture, shopping, dining and entertainment. The famous Buchanan Street – often referred to as the Style Mile – is home to an impressive range of high-end and high-street retailers, while the surrounding streets boast an exciting selection of cafés, restaurants and nightlife. Excellent transport links, including Glasgow Central and Queen Street stations, provide easy access across Scotland and beyond, making the city centre an ideal location for those seeking both convenience and a dynamic lifestyle.

EER band C

FLOORPLANS

Floorplan

Arrange a viewing for

Mitchell Street, City Centre
GET IN TOUCH

Floorplan

Please enter your details below and one of our team will get in touch to organise a valuation.