Sold by Vanilla Square
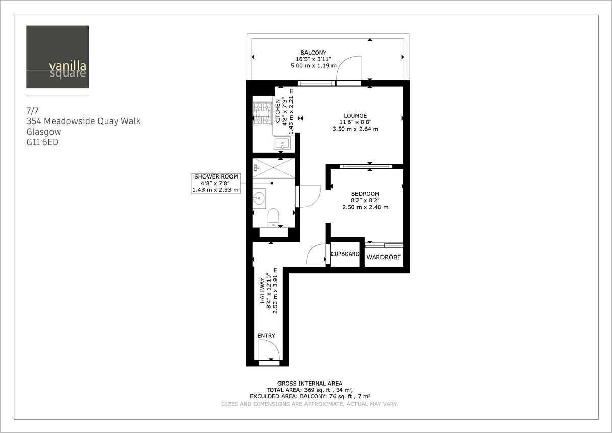
Occupying a prime position on the seventh floor of the prestigious Glasgow Harbour development, this stylish one-bedroom apartment offers a perfect blend of modern comfort and riverside living. The property enjoys a bright, open-plan layout with floor-to-ceiling windows that fill the living space with natural light and provide direct access to a private balcony , the ideal spot to unwind and take in the elevated views across the River Clyde. The contemporary kitchen is seamlessly incorporated into the living area, featuring sleek cabinetry, integrated appliances, and generous workspace.
The double bedroom is well-proportioned and benefits from fitted wardrobe storage, while the modern shower room is finished to a high standard with a walk-in enclosure and quality fittings. Further features include double glazing, electric heating, secure entry, and lift access.
Perfectly positioned between the City Centre and the West End, the apartment is just moments from the vibrant cafés, bars, and restaurants of Byres Road, as well as excellent transport links from Partick and easy access to the Clydeside Expressway and M8. Combining style, convenience, and a sought-after riverside location, this is an outstanding opportunity for first-time buyers, professionals, or investors.
EER band C


















