Sold by Vanilla Square.
Occupying a prominent position on the iconic St Vincent Crescent, this substantial four-bedroom main-door duplex is arguably one of the most exciting homes to come to market in Finnieston this year. Set over elevated ground and garden levels, the property offers beautifully renovated interiors, an exceptional specification throughout, and direct access to an impressive shared garden.
Designed by renowned architect Alexander Kirkland between 1848-1850, St Vincent Crescent is one of the longest serpentine crescents in Britain and remains a defining landmark in Glasgow’s West End. The crescent and surrounding area – including Minerva Street, Corunna Street, and parts of Argyle Street – form part of the St Vincent Crescent Conservation Area and hold Category A listing status.
Finnieston has fast become one of Glasgow’s most sought-after districts, blending rich history with a vibrant, modern lifestyle. The area is home to some of the city’s most acclaimed restaurants, bars, galleries, and independent shops. With the OVO Hydro, Kelvingrove Park, and excellent transport links all nearby, it offers the perfect balance of culture, convenience, and community.
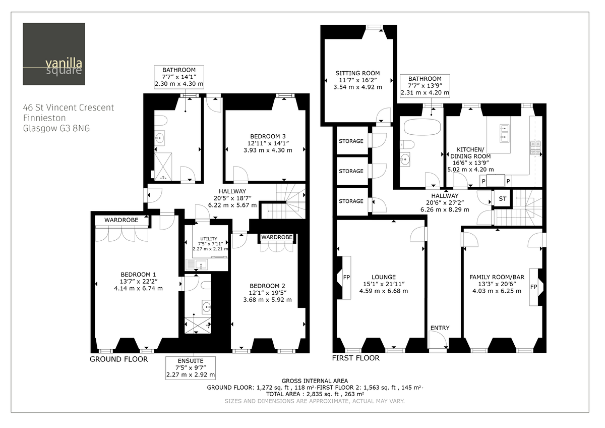
The property’s private main door opens into a striking T-shaped reception hallway, immediately setting the tone for the exceptional finish throughout. At the front, the grand living room features ornate cornicing, a marble fireplace, and open views towards the bowling green – part of the original 19th-century pleasure gardens laid out by Kirkland. The living room could also be used as a fifth bedroom giving flexible use of the accommodation. The formal dining room mirrors this charm, complete with another impressive fireplace and detailed ceiling work.
To the rear, the spacious dining kitchen has been finished with sleek, high-quality cabinetry, ‘leathered’ granite worktops, and a full suite of integrated appliances. There is plenty of space for a dining table and chairs making it a great place for entertaining. A stunning family bathroom – fitted with a freestanding bath, tiled floor, and panelled walls – adds further elegance to the upper level. A fourth bedroom, currently used as a cosy snug or TV room, completes the accommodation on this floor.
A broad stairway with a modern glass balustrade leads down to the garden level, where you’ll find three generously sized double bedrooms. Two benefit from bespoke, hand-built wardrobes, while the principal bedroom also enjoys a luxurious en-suite shower room. A further stylish shower room and a fully fitted utility room with sink, appliances, and storage enhance the functionality of this level.
From the lower hallway, direct access is granted to the beautifully maintained shared garden at the rear. Enclosed by full-height brick walls and finished with blonde gravel, this peaceful outdoor space is a rare find in such a central location.
Overall this is one of the most special homes around, cleverly mixing traditional character with luxurious, modern living in a prime West End location.
EER band C



















































