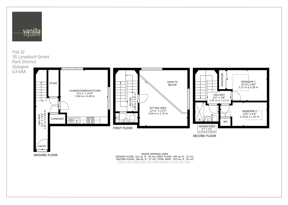
A fabulous two bedroom triplex within the coveted Trinity Building in the Park District. Presented in immaculate condition throughout and certain to impress. This gorgeous home will suit a range of buyers due to its size, condition and location. Nicely tucked away from busy main roads, yet only moments from the City Centre and the heart of the vibrant West End. The building itself dates back to around 1857 and has some magnificent features including a stunning atrium that is filled with natural light and tropical plants. The accommodation extends to around 872 sq ft and is set over three levels.
The internal accommodation comprises; entrance on the first floor level into a welcoming hallway with two storage cupboards off. An immediately impressive open plan living area with two large arch windows and double height ceilings which create a feeling of space. The dual aspects flood the room with natural light throughout the day. The kitchen has refitted high-gloss wall and floor units and integrated appliances.
Stairs lead to the next level where there is a wonderful, versatile sitting room 2hich forms the mezzanine area. It also enjoys sunny aspects form the large arched windows. Completing this level is a wc with white two piece suite.
The top floor has two beautiful double bedrooms that both offer fitted storage, and a refitted shower room with fresh three piece suite and chrome fittings.
The specification includes gas central heating and security controlled entrance. Permit parking is available through Glasgow City Council. This exceptional home is one-of-kind and not to be missed.
The Park District is one of the most prestigious and architecturally striking areas in Glasgow’s West End. Nestled between Kelvingrove Park and the city centre, this exclusive neighbourhood is renowned for its grand Victorian townhouses, many of which have been converted into elegant apartments and offices. With its leafy streets, stunning views over the park and skyline, and close proximity to both the cultural attractions of the West End and the amenities of the city centre, the Park District offers a perfect blend of tranquility and urban convenience.
EER band D

























