Sold by Vanilla Square.
This gorgeous four-bedroom townhouse is set within the highly sought-after Kelvindale Court development, quietly tucked away in a leafy setting. Enjoying a peaceful position away from busy main roads, the property is nevertheless perfectly placed for the vibrant West End, with its excellent range of shops, bars, restaurants and superb public transport links right on the doorstep.
The home has been extensively upgraded by the current owner and is presented in true walk-in condition throughout.
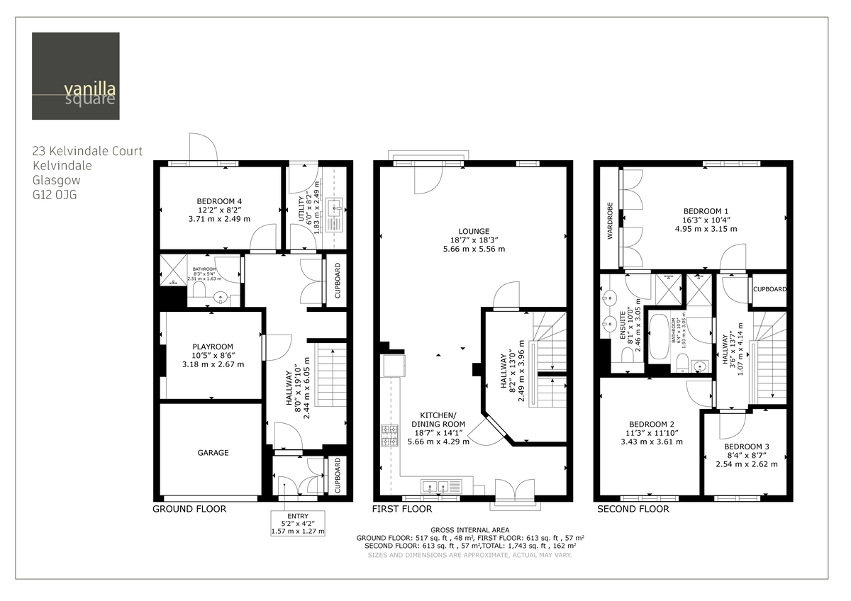
On entering, a bright and welcoming hallway sets the tone for the accommodation and offers space for a useful home office area. On the ground floor there is a generous double bedroom with French doors opening onto the rear garden, making it ideal for teenagers seeking their own space, visiting guests, or alternatively as a sitting or family room. A stylish shower room with a fresh white three-piece suite is also located on this level, along with a well-appointed utility room providing plumbing for appliances and direct access to the rear garden. Completing the ground floor is an internal store area currently being utilised as a children’s playroom/toy storage.
The first floor forms the hub of this exceptional family home and has been cleverly adapted to create a superb living and entertaining space. The spacious lounge enjoys French doors overlooking the rear garden and flows seamlessly into the refitted kitchen. The kitchen features quality high-gloss wall and floor units, integrated appliances and ample space for a dining table and chairs.
On the upper level, the principal bedroom is positioned to the rear and benefits from fitted wardrobes and a contemporary en-suite shower room. There are two further well-proportioned bedrooms, ideal for family living. Completing the accommodation is a stylish family bathroom fitted with a fresh white four-piece suite, including both a bath and a separate shower.
Further benefits include gas central heating and double glazing throughout.
Externally, the property boasts glorious South-facing rear gardens featuring a decked area and lawn, fully enclosed by fencing to provide privacy and security. To the front, there is a driveway offering off-street parking for two cars.
Kelvindale is one of Glasgow’s most desirable residential pockets, prized for its leafy surroundings and village-like atmosphere while remaining exceptionally well connected. The area offers excellent local amenities, well-regarded schooling and easy access to the West End, city centre and beyond via regular rail and bus services. Nearby green spaces, including the Kelvin Walkway and local parks, provide ideal opportunities for outdoor recreation, making Kelvindale a perfect choice for families and professionals alike.
EER band C














































