Beautifully presented and ideally positioned in the heart of Cathcart, this bright two-bedroom first-floor flat offers stylish open-plan living and excellent convenience, making it perfect for first-time buyers, couples, or buy-to-let investors.
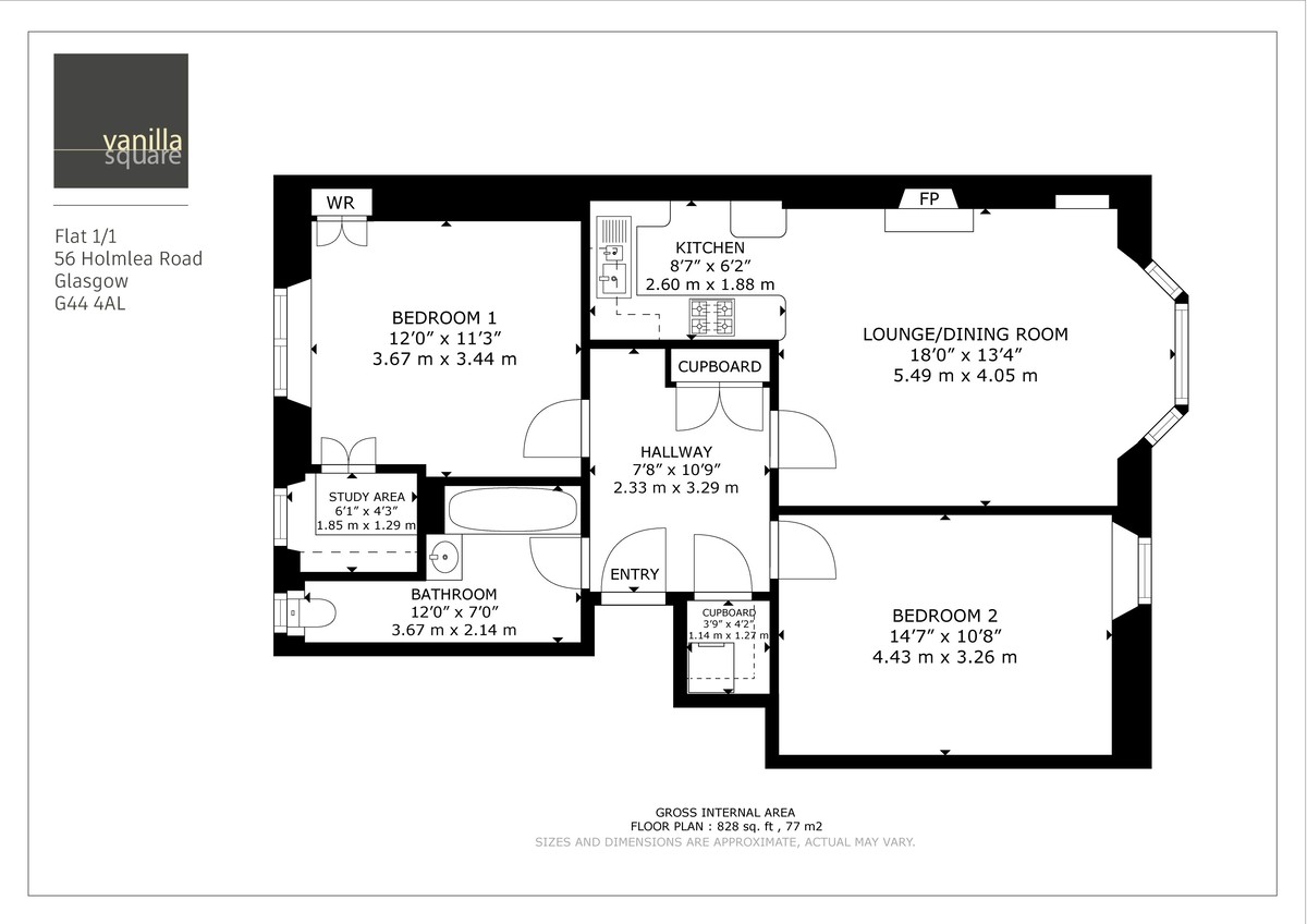
The accommodation is arranged around a welcoming reception hallway and flows into a superb open-plan kitchen and lounge, offering generous space for both relaxing and dining. Large windows draw in natural light throughout the day, giving the room an airy, modern feel. The contemporary kitchen is well laid out, with ample worktop space and units for storage.
There are two well-proportioned bedrooms, each offering comfortable accommodation and flexibility for use as a home office or guest room. The property is completed by a well-appointed bathroom.
Set within a traditional red sandstone tenement, the building enjoys secure entry and a communal rear garden. Holmlea Road is moments from an excellent range of independent cafés, shops, and transport links, including Cathcart and Mount Florida train stations, providing quick access to the city centre.
A wonderful opportunity to secure a stylish home in a highly sought-after Southside location.
EER BAND C

























