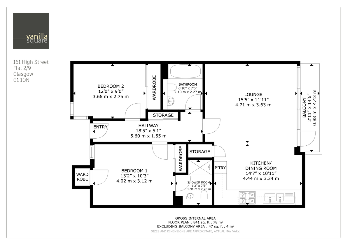
This well-presented two-bedroom apartment is ideally positioned within Glasgow’s vibrant city centre, offering stylish and practical living accommodation.
The property features a bright and spacious open-plan kitchen and lounge, creating a comfortable setting for both everyday living and entertaining. The lounge area provides direct access to a private balcony, adding valuable outdoor space and an excellent spot to unwind.
There are two generously proportioned double bedrooms, with the principal bedroom benefiting from a modern en-suite shower room. A contemporary family bathroom serves the second bedroom and guests, finished to a clean and neutral standard.
Further benefits include excellent storage, secure entry and a highly convenient location with a wide range of shops, cafés, restaurants, universities and transport links all within easy walking distance.
An ideal purchase for first-time buyers, professionals or investors seeking a centrally located Glasgow property.
EER band C

























