This beautifully presented top-floor, two-bedroom flat boasts an unrivalled outlook, a spectacular kitchen, and a prime position within the leafy and highly desirable Partickhill area.
Situated on the ever-popular Hayburn Crescent, at the foot of Partickhill, this exceptional home offers a perfect blend of period charm and contemporary living in a truly unique West End location.
Set within a handsome blonde sandstone tenement, the property enjoys a peaceful setting overlooking Hayburn Park, while remaining just moments from the vibrant amenities of Hyndland and Partick.
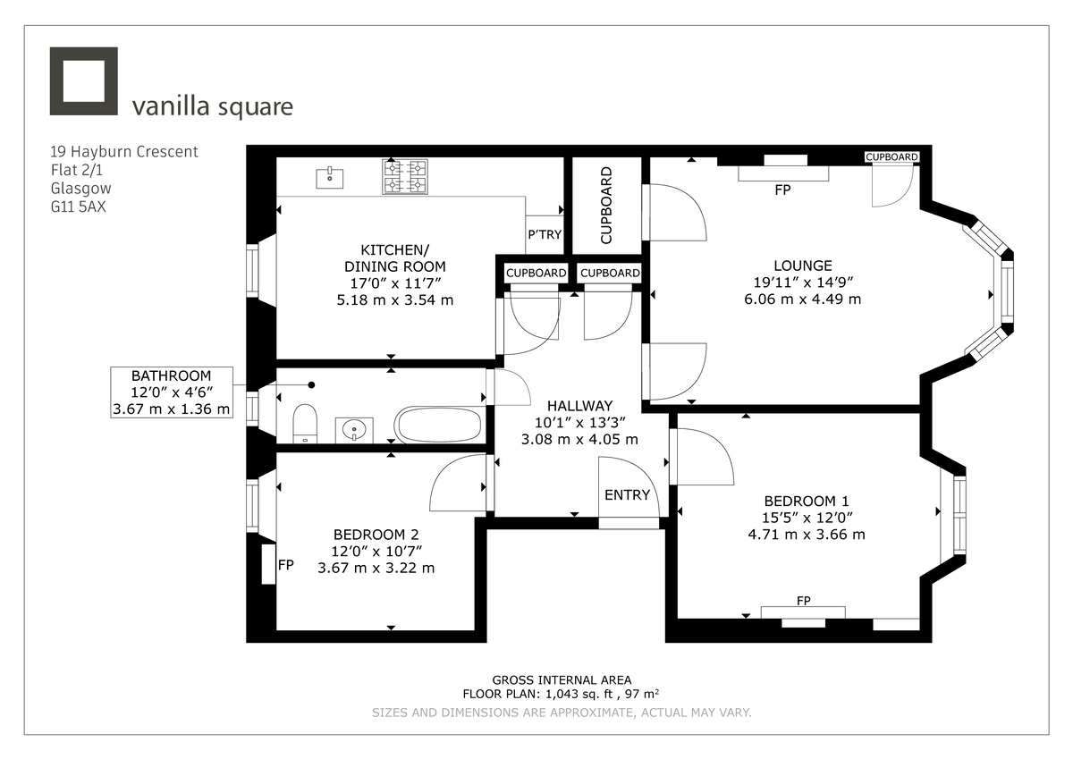
The accommodation is accessed via a well-maintained communal close and opens into a broad, welcoming reception hallway with two useful storage cupboards.
The impressive lounge is a true standout, featuring a striking original fireplace, intricate period detailing, and a large bay window that frames open views across Hayburn Park. A useful cupboard within the lounge recess provides additional storage.
To the rear, the generous dining kitchen has been thoughtfully refitted to an exceptional standard, with no expense spared. It features sleek wall and floor units, elegant worktops, integrated appliances, and a Belfast sink with distinctive gold fittings. Designed to maximise natural light, the space comfortably accommodates a large dining table-ideal for both everyday living and entertaining.
There are two spacious double bedrooms and a beautifully presented bathroom, styled in keeping with the property’s period character and fitted with a fresh white three-piece suite and over-bath shower.
Further benefits include gas central heating, double glazing, a secure entry system, and well-maintained communal areas, including a shared rear garden. On-street permit parking is available via Glasgow City Council.
Partickhill is one of the West End’s most sought-after residential pockets, known for its charming tree-lined streets and strong sense of community. The property is ideally located within easy reach of the boutique shops, cafés, and restaurants of Hyndland, as well as the wider amenities of Partick and Byres Road. Excellent transport links, including nearby train and subway stations, offer quick and convenient access to Glasgow city centre and beyond. This rare combination of tranquillity and connectivity makes Hayburn Crescent a highly desirable place to call home.
EER band C


























