Sold by Vanilla Square
This beautifully presented one-bedroom flat is located within a modern, well-maintained development in the heart of Glasgow’s vibrant West End. Offering spacious living, high-quality finishes, and excellent transport links, this property is ideal for first-time buyers, young professionals, students, or those looking to downsize without compromising on style or convenience.
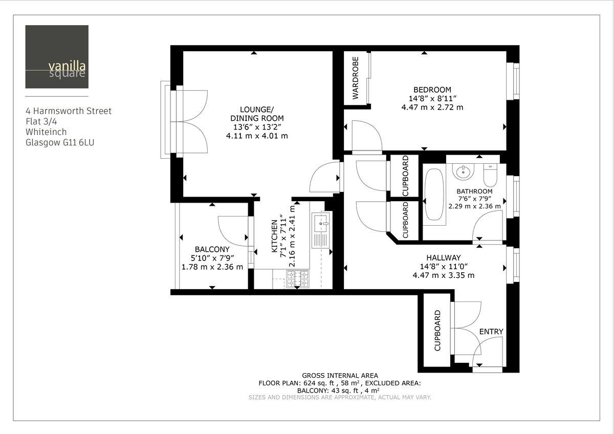
The spacious lounge is flooded with natural light thanks to its south-facing aspect and charming Paris balcony, perfect for enjoying the sunshine. The lounge opens seamlessly into a stylish, modern kitchen fitted with quality wall and floor units and integrated appliances. Just off the kitchen, a private balcony offers a peaceful outdoor retreat – ideal for morning coffee or an evening glass of wine after a long day – boasting open aspects towards the River Clyde.
The generous double bedroom is quietly positioned to the rear and features fitted wardrobes, while the fresh, modern bathroom is equipped with a white three-piece suite. Additional features include gas central heating, double glazing, and immaculate communal areas with lift access to all floors. On-street parking is available for both residents and visitors.
This is a truly walk-in condition home that combines comfort, style, and a prime location.
Glasgow’s West End is one of the city’s most desirable and culturally rich areas, known for its eclectic mix of cafés, bars, boutiques, and green spaces. Home to the University of Glasgow and the stunning Kelvingrove Park and Art Gallery, the area offers an unrivalled lifestyle with everything on your doorstep. Excellent public transport links and quick access to the Expressway make commuting to the city centre or further afield a breeze. Whether you’re exploring the independent shops on Byres Road, relaxing in the Botanic Gardens, or dining in some of the city’s best restaurants, the West End truly has something for everyone.
EER band C





















