Sold by Vanilla Square.
This well-proportioned two-bedroom top floor flat offers bright, comfortable accommodation within a traditional blond sandstone tenement. The property combines period charm with modern convenience and is ideally suited to first-time buyers, professionals or those looking to invest in a popular area.
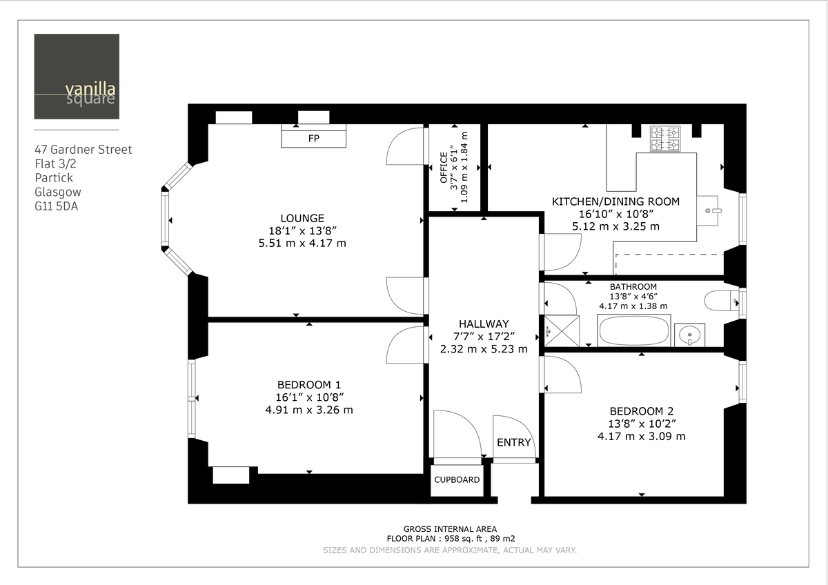
Accessed via a well-maintained communal stairwell, the flat opens into a spacious hallway which leads to all main rooms. The lounge is positioned to the front and benefits from a large bay window, allowing for plenty of natural light and views across to Kelvingrove Museum & the Science Centre. The office space off the living room utilises the cupboard to full functionality and great for an option for working from home. Both bedrooms are good-sized doubles, with room for furniture, storage & the large windows in each keep the rooms light and comfortable.
The flat also features a generously sized, bright dining kitchen with views of the Kilpatrick Hills, and space to dine and entertain. A modern bathroom and additional large storage cupboard complete this well laid out home.
Further benefits include gas central heating, double glazing, secure entry, and access to a neatly kept communal garden to the rear of the property.
Gardner Street is well located for a wide range of local amenities, with Byres Road, the University of Glasgow, and Kelvingrove Park all within easy reach. The property is in close proximity to excellent public transport links, including nearby Partick subway, train station and bus routes, makes this a convenient location for access to the city centre and beyond.
This is a fantastic opportunity to purchase a traditional West End flat in a well-established and desirable area. Viewing is highly recommended.
EER band C

















