A lovely one-bedroom ground floor flat set within a highly sought-after development in Kelvindale, offering spacious, modernised accommodation ideal for first-time buyers, young professionals, students or those looking to downsize.
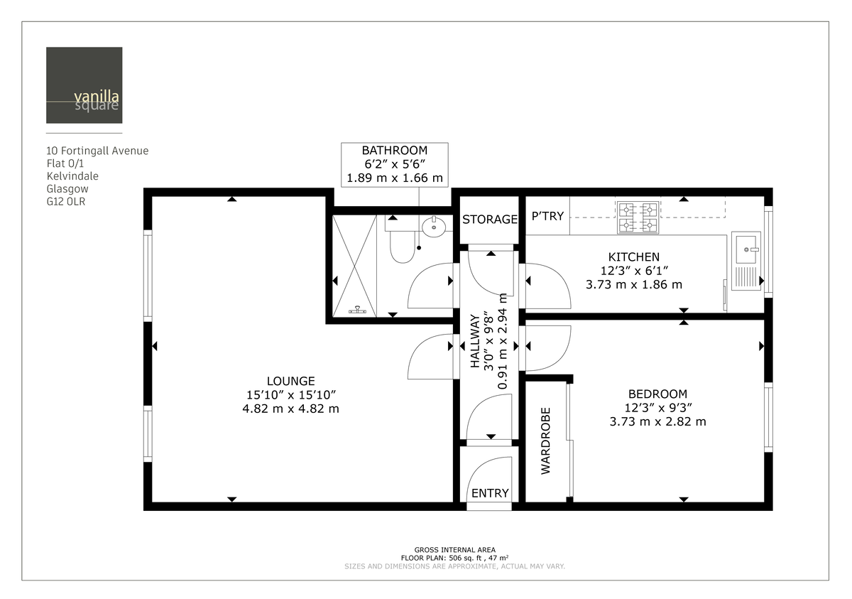
The property has been redecorated and upgraded to create a fresh, contemporary living space. A welcoming entrance hallway with useful storage cupboard leads into a generous L-shaped lounge and dining room positioned to the front. This bright and versatile space offers ample room for both relaxing and entertaining. Within the development, some similar properties have reconfigured the layout to incorporate an open-plan kitchen within the living area, creating an additional bedroom (subject to the necessary planning consents), presenting an exciting opportunity for future flexibility.
The refitted kitchen is finished with quality wall and floor units and a range of integrated appliances, providing a stylish and practical cooking space. The spacious double bedroom benefits from fitted wardrobes, while the modern shower room features a fresh white three-piece suite. Fresh décor throughout enhances the move-in-ready appeal.
Further benefits include electric heating, double glazing, well-maintained communal areas and attractive surrounding gardens. Residents’ parking is located to the rear of the building.
Kelvindale is a highly regarded residential district in the West End of Glasgow, known for its leafy setting and peaceful atmosphere while remaining close to the vibrant heart of the West End. Excellent local amenities, shops, cafés and supermarkets are nearby, with convenient transport links including Kelvindale railway station providing easy access to the city centre and beyond. The area is also well placed for access to green spaces and riverside walks, making it a popular choice for a wide range of buyers.
EER band C

















