Sold by Vanilla Square.
A wonderful three bedroom semi detached villa set in the ever-popular Mains Estate in Milngavie. Successfully extended to offer flexible and spacious living accommodation over two levels. Exceptionally well-presented throughout and offered to the market in true walk-in condition. Nicely positioned close to an extensive range of local amenities including high ranking schools and excellent public transport links. Milngavie’s pedestrianised town centre provides a wide selection of facilities and services, including banks, the Post Office, restaurants, Marks & Spencer’s Food Hall, Boots, and slightly further out, Waitrose and Aldi.
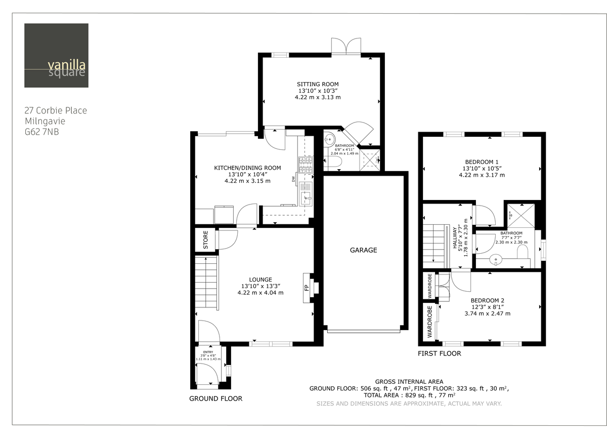
The internal accommodation comprises; entrance vestibule that leads into a beautiful 13’10 lounge with feature electric fireplace and large windows to the front making it a bright and airy room. The kitchen is fitted with quality wall and floor units, integrated gas hob and oven, and plenty of space for a dining table and chairs. The kitchen has patio doors onto the rear garden and it also gives access to the fabulous extension.
The extension is currently used as a sitting room and it has French doors that also give access to the rear garden. The sitting room could also be used as a third bedroom and it conveniently has an en-suite shower room with three piece suite.
The upper level has two well-proportioned double bedrooms (the principal bedroom has fitted wardrobes) and a refitted shower room with fresh white three piece suite.
The specification includes gas central heating and double glazing. To the rear there is an enclosed garden with two patios, a wooden decked area and an easy maintenance area that will burst with colour in the summer months. To the front there is a driveway as well as a single garage for secure parking and extra storage.
EER band C


































