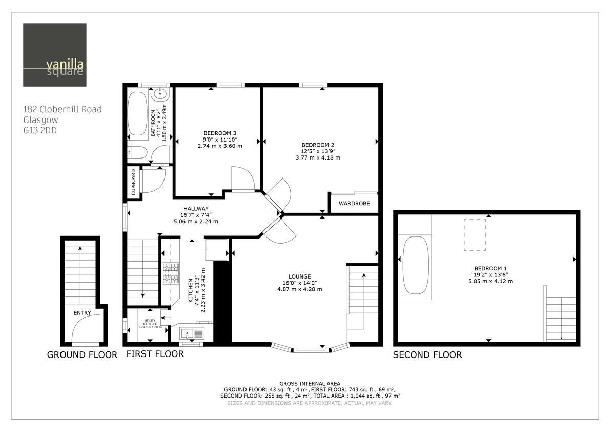
This beautifully presented two-bedroom upper cottage flat is set within the popular Knightswood district, offering bright, spacious accommodation ideal for families, young professionals and first-time buyers alike. Conveniently located close to Glasgow’s sought-after West End, the property enjoys easy access to an excellent range of shops, bars, restaurants and local amenities, as well as highly regarded schools.
The accommodation is entered via a welcoming entrance hallway with stairs leading to the upper level. The spacious lounge provides an excellent living and entertaining space, while the modern fitted kitchen is well equipped and benefits from a useful pantry for additional storage. There are two generous double bedrooms, both offering comfortable and flexible living space, and a stylish bathroom complete with a fresh white three-piece suite.
Further enhancing the home is a floored and lined loft, providing valuable additional space suitable for a variety of uses. Externally, the property enjoys some private garden space to the rear, finished with low-maintenance astroturf and complemented by a useful shed currently set up as a home gym. On-street parking is available to the front.
Knightswood is a well-established and highly desirable residential area in Glasgow’s west, popular for its excellent transport links, strong sense of community and abundance of green spaces. The area is well served by local shops, cafes and leisure facilities, with nearby parks and walks offering a welcome escape from city life. With easy access to the West End, city centre and major road networks, Knightswood combines suburban tranquillity with urban convenience, making it a fantastic place to call home.
EER band C























