SOLD BY VANILLA SQUARE
Set within the heart of leafy Kelvinside, this grand four-bedroom upper duplex occupies the upper two floors of an elegant sandstone villa, offering generous proportions, beautiful period detailing, and exceptional versatility across two levels of accommodation.
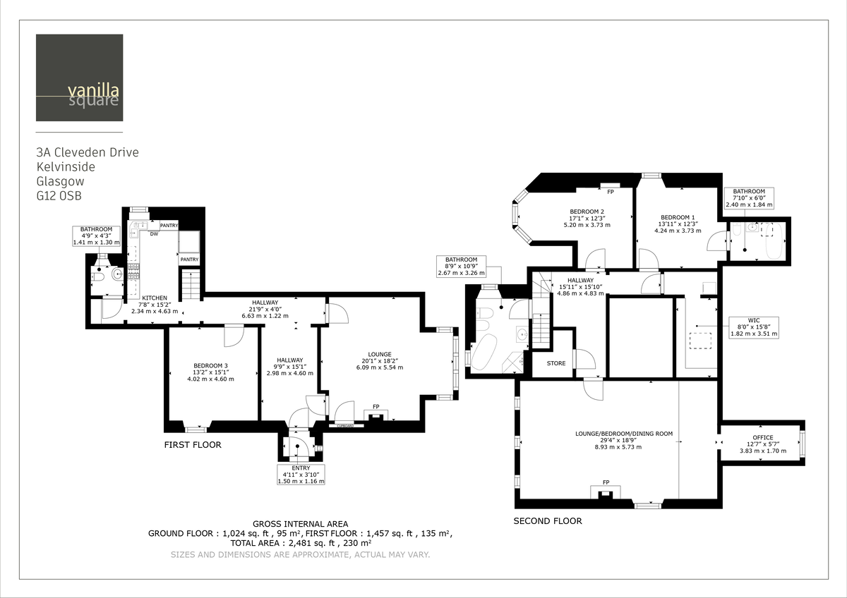
Accessed via its own main door entrance at first floor level, the property opens into a wide and welcoming hallway that sets the tone for the home-original woodwork, intricate cornicing, and high ceilings create a stunning sense of space and grandeur. This hallway is large enough to accommodate a dining area, perfect for entertaining.
To the front, a formal lounge/dining room features a charming box bay window and a handsome feature fireplace, ideal for both everyday living and special occasions. The kitchen sits to the rear and is well-appointed with painted units, a Range-style cooker, chrome fixtures, and room for casual dining. A pantry and separate WC offer valuable storage and convenience. A spacious double bedroom completes this level.
Upstairs, the accommodation continues to impress. The sitting room is quite exceptional-over 29 feet in length, with dual aspects and a fireplace. Off this grand room is a bright and flexible home office or playroom, adding to the adaptable layout.
Two further well-proportioned double bedrooms are also located here, one benefitting from a private en-suite. A large family bathroom features a stylish four-piece suite with roll-top bath and separate shower cubicle.
Additionally, a versatile walk-in dressing room provides excellent utility space and could serve as a small bedroom, study, or storage room.
Outside, there is a private front seating area – ideal for morning coffee or evening dining – and to the rear, a shared garden (used only by the two flats) offers a lovely green outlook and plenty of space to relax or entertain.
Additional features include gas central heating, secondary glazing, and ample on-street parking for residents and guests.
This unique and beautifully maintained property is a rare find in one of the West End’s most desirable addresses, just moments from the open spaces of the Botanic Gardens and the vibrant cafés and boutiques of Byres Road.
Kelvinside is one of Glasgow’s most prestigious and desirable residential areas, known for its elegant architecture, tree-lined streets, and peaceful atmosphere. Nestled within the West End, it offers a perfect balance of tranquility and convenience-just a short walk from the vibrant amenities of Byres Road, the Botanic Gardens, and top-rated schools. The area is rich in history and character, with many grand Victorian and Edwardian homes, and is popular with families and professionals alike. Excellent transport links and access to green spaces make Kelvinside an ideal setting for those seeking a refined yet connected lifestyle.
EER band D








































