An exciting opportunity to acquire a three-bedroom mid-terrace villa in the highly sought-after area of Broomhill, positioned on the ever-popular Churchill Drive. This spacious home is in need of modernisation, offering the perfect chance for buyers to put their own stamp on the property and create a home tailored to their taste. There is also excellent potential to extend or further develop the accommodation, subject to the necessary planning consents.
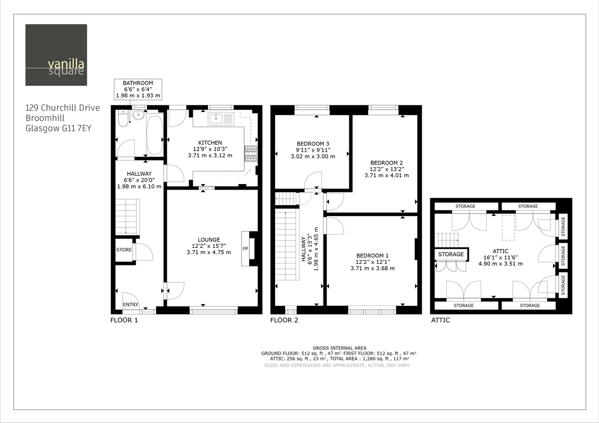
The property features a broad and welcoming entrance hallway leading to a bright and spacious lounge with a large front-facing window that fills the room with natural light. To the rear, the kitchen provides direct access to the enclosed south-facing garden – mature, private, and ideal for families or keen gardeners.
The ground floor also includes a bathroom with a three-piece suite.
Upstairs, the property offers three generously sized bedrooms, each with good proportions. A fixed wooden ladder leads to a loft room, which offers further scope for development, again subject to the appropriate permissions.
Additional benefits include gas central heating, double glazing, and the rare advantage of both a private front garden and a large, enclosed rear garden. This is a fantastic prospect for those looking to create a family home in one of Glasgow’s most desirable West End neighbourhoods.
Broomhill is one of Glasgow’s most popular residential areas, known for its friendly community feel, beautiful architecture, and fantastic amenities. Located in the heart of the West End, it offers a perfect blend of suburban peace with city convenience. Excellent transport links are right on the doorstep, including Hyndland Train Station just moments away, providing swift access to Glasgow city centre and beyond. The area is also well served by highly regarded schools, independent shops, trendy cafés, and restaurants, with the bustling Byres Road and Great Western Road just a short walk away. Whether you’re a first-time buyer, growing family, or investor, Broomhill offers an exceptional lifestyle and long-term value.
EER band D



























