Set within a highly desirable residential pocket of Anniesland, this gorgeous family home offers approximately 2,337 sq ft of spacious and versatile accommodation, perfectly suited to the needs of a growing family. Presented in walk-in condition, the property combines classic charm with modern comforts, providing a welcoming and flexible living environment.
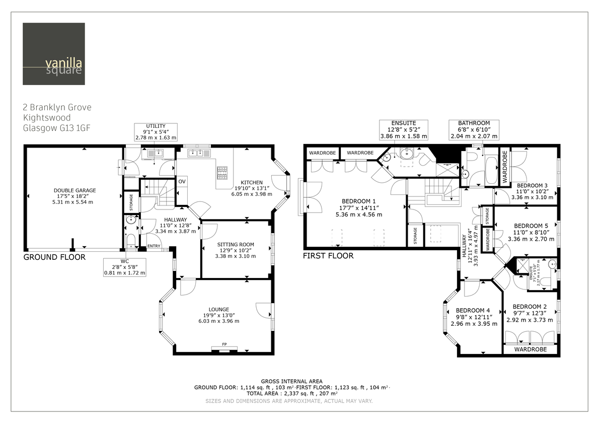
The ground floor features a formal lounge that benefits from a large bay window flooding the room with natural light, a striking feature gas fireplace, and French doors that open onto the private rear garden. This inviting space is ideal for both relaxing evenings and entertaining guests. Adjacent to the lounge is a cosy sitting/dining room, which offers flexible usage and could easily be converted into a sixth bedroom if desired, making it a practical addition for larger families or guests.
At the heart of the home lies the well-equipped kitchen, fitted with contemporary wall and floor units and integrated appliances. A thoughtfully designed breakfast bar separates the kitchen from the dining area, creating an open-plan feel that’s perfect for casual meals and social gatherings. This room also benefits from direct access to the rear garden, making it an excellent space to flow outside for summer BBQs. The ground floor is completed by a practical utility room and a convenient wc/cloakroom, ensuring all day-to-day needs are met with ease.
Upstairs, the property continues to impress with a generous principal bedroom featuring fitted wardrobes and a stylish en-suite shower room, providing a private retreat for homeowners. The second bedroom also enjoys the luxury of an en-suite shower room and built-in wardrobes. Three further bedrooms, two with fitted wardrobes, offer plenty of space for a growing family or guests. The family bathroom is finished with a crisp white three-piece suite, adding a fresh and clean touch to the upper level.
Additional benefits include gas central heating and double glazing throughout, ensuring comfort and energy efficiency year-round. The private, enclosed rear gardens provide a safe and tranquil outdoor space, while the driveway and double integral garage offer secure parking and ample storage options. There is also an option to convert the garage into further living space if required, subject to planning consents.
Located just moments from the bustling Anniesland Cross, residents enjoy convenient access to a wide selection of shops, bars, and a supermarket, as well as the David Lloyd Leisure Club for fitness and recreation. The vibrant Glasgow West End is also easily accessible, boasting a diverse array of restaurants, cafes, cultural venues, and green spaces. Families will appreciate the proximity to several high-ranking local schools, making this an ideal location for those seeking quality education options. Commuters benefit from easy access to the Expressway, connecting seamlessly to Glasgow City Centre and beyond.
EER band C







































