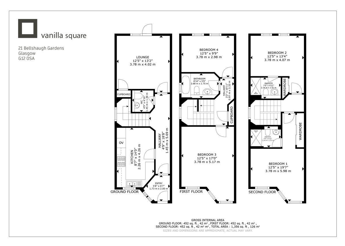
Set within the sought-after Bellshaugh Gardens in Kelvinside, this substantial four-bedroom townhouse offers an exciting opportunity for buyers looking to create a truly bespoke home. Requiring modernisation, the property boasts excellent proportions and a flexible layout across three levels, making it ideal for families or those seeking adaptable living space with outstanding potential.
The accommodation begins with a welcoming entrance hallway, complete with WC/cloaks, leading through to a bright rear-facing lounge with direct access to the private garden. A fitted kitchen with integrated appliances sits conveniently off the ground floor hall.
On the first floor, a generous front-facing second living room provides versatility and could easily serve as an additional double bedroom, while a further double bedroom is positioned to the rear alongside a family bathroom featuring a three-piece suite.
The second floor has two well-proportioned double bedrooms, both benefiting from fitted wardrobes and en-suite shower rooms.
The specification includes gas central heating and double glazing.
Externally, the property enjoys private rear gardens with excellent scope to landscape and create a relaxing outdoor retreat. To the front there is residents’ parking, and this property has a single garage offering secure parking and extra storage.
Overall this is a wonderful home bursting with potential.
Kelvinside is a sought-after residential area in the West End of Glasgow, known for its elegant homes, leafy streets, and peaceful atmosphere. Ideally located near the University of Glasgow and the green open spaces of the Botanic Gardens, it also benefits from excellent nearby amenities, including a range of independent cafés, restaurants, and shops, offering a perfect balance of tranquillity and vibrant city living. High ranking local schools are also part of the attraction of this wonderful area.
EER band D






































