This spacious three-bedroom semi-detached villa offers an excellent opportunity to purchase a fabulous modern family home in a highly sought-after area of Paisley. Ideally positioned close to all local amenities and the town centre, the property is also on the doorstep of superb public transport links, providing easy access to Glasgow city centre – perfect for commuters.
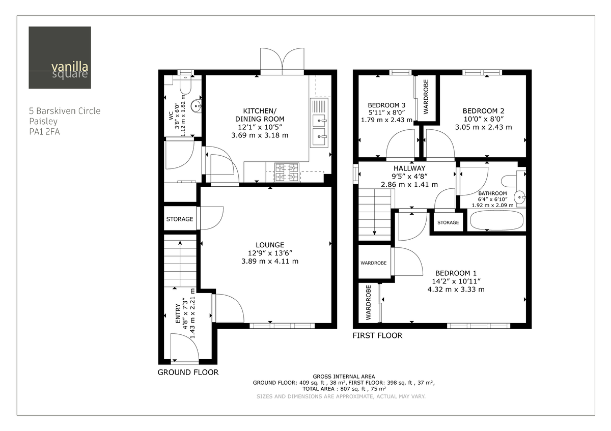
The accommodation begins with a welcoming entrance hallway with staircase leading to the upper level. The bright and spacious lounge offers an ideal space for entertaining guests or enjoying cosy family evenings. To the rear, the impressive dining kitchen is fitted with a range of modern wall and floor units, complementing worktops and integrated appliances, with French doors opening directly onto the rear garden – perfect for indoor-outdoor living.
Further enhancing the ground floor is a useful utility room and a convenient WC/cloakroom.
Upstairs, there are three well-proportioned bedrooms, with the principal bedroom benefiting from fitted wardrobes. The family bathroom is finished with a fresh white three-piece suite and an over-bath shower.
The specification includes gas central heating, double glazing and solar panels, providing added energy efficiency.
Externally, the rear garden is designed for easy maintenance, featuring astroturf and a large composite decked area – perfect for relaxing and entertaining during the summer months. A driveway to the front provides off-street parking.
Overall, this is an excellent family home offering space, style and convenience.
Paisley is a vibrant and historic town offering an excellent range of shopping, dining and leisure facilities, including the popular Paisley town centre and Piazza shopping complex. Renowned for its rich heritage and cultural attractions, the town also benefits from beautiful parks and green spaces. With excellent transport links by road, rail and bus, Paisley provides easy access to Glasgow city centre, Glasgow Airport and the wider central belt, making it a highly desirable location for families and professionals alike.
EER band C






























