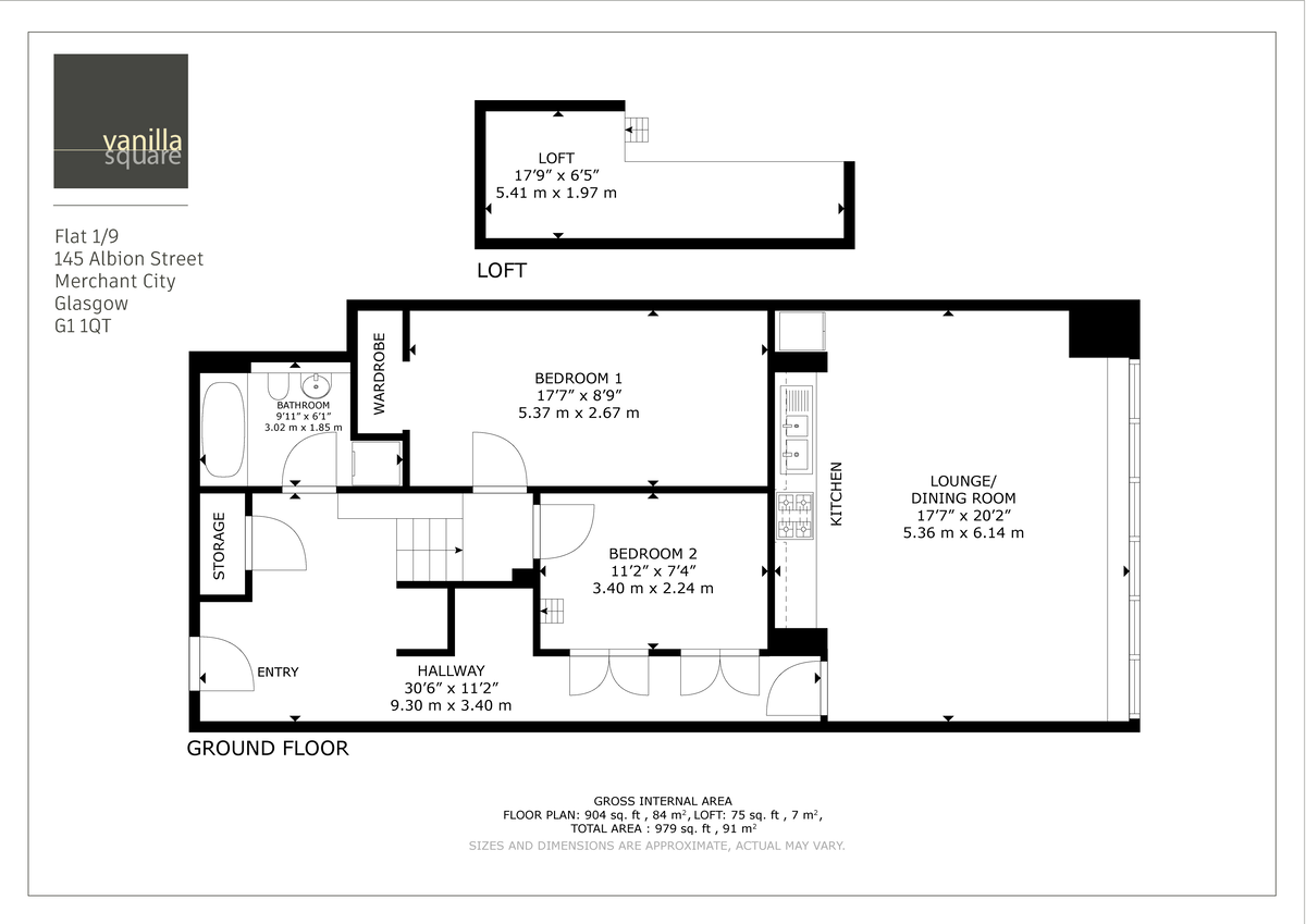
Situated in the vibrant heart of Glasgow’s Merchant City, this beautifully presented two-bedroom apartment offers modern urban living in one of the city’s most desirable locations. Located on the first floor of a contemporary development, the property boasts an impressive open-plan kitchen and lounge area, enhanced by stunning floor-to-ceiling windows that flood the space with natural light and offer a bright, airy atmosphere throughout.
The kitchen is sleek and modern, featuring integrated appliances and a stylish finish that blends seamlessly with the spacious living area, making it ideal for both everyday living and entertaining. Both bedrooms are generously proportioned, offering excellent natural light and comfortable accommodation. The bathroom is finished to a high standard with contemporary fittings and a clean, neutral design.
Further benefits include a secure entry system, lift access, and a prime city centre location just a short walk from Queen Street and High Street stations. With an abundance of cafes, restaurants, bars, and cultural attractions right on the doorstep, this apartment is perfectly positioned for enjoying everything Glasgow has to offer. Whether you’re a first-time buyer, professional, or investor, this is a rare opportunity to secure a stylish home in one of the city’s most iconic neighbourhood
EER BAND C



















