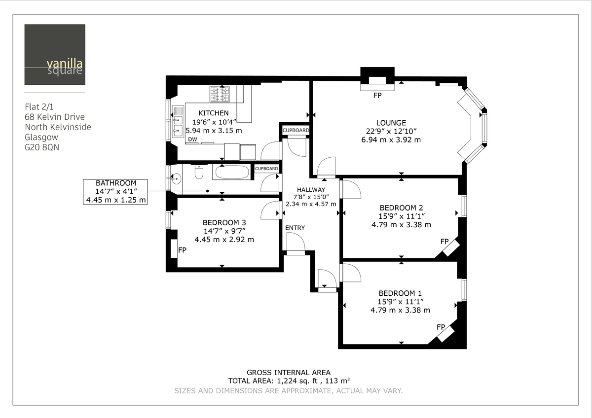
Set on the second floor of a handsome red sandstone tenement, this beautifully presented three-bedroom flat offers generous accommodation in one of Glasgow’s most desirable and peaceful West End neighbourhoods. Combining traditional features with modern touches, it’s an ideal home for families, professionals, or anyone seeking a classic West End lifestyle.
The property is filled with charm and character, with a grand bay-windowed lounge at the front, boasting a feature fireplace, original wooden flooring, and ornate cornicing. The spacious dining kitchen at the rear is perfect for everyday living and entertaining, featuring modern wall and floor units, an integrated gas hob and oven, wooden worktops, a breakfast bar, and a lovely dining recess.
All three bedrooms are spacious doubles, two of which showcase beautiful original fireplaces. The bathroom is fitted with a fresh three-piece suite and an over-bath electric shower. A large entrance hallway creates a welcoming first impression and offers excellent storage via built-in cupboards.
The building itself is well-maintained, with tidy communal areas and attractive shared gardens to the rear, managed by an appointed factor. Gas central heating ensures year-round comfort, and on-street permit parking is available through Glasgow City Council.
North Kelvinside is a peaceful and green pocket of Glasgow’s West End, known for its leafy streets, charming period architecture, and strong sense of community. Nestled between the River Kelvin and Queen Margaret Drive, it offers a relaxed residential setting while being just a short walk from the buzz of Byres Road, Great Western Road, and the Botanic Gardens. The area is well served by local cafes, shops, and transport links, including nearby Kelvinbridge and Hillhead subway stations. It’s also within easy reach of excellent schools and the University of Glasgow, making it a highly sought-after location for a wide range of buyers.
EER band D































