A stunning detached sandstone family home with granny flat in Kilmacolm
Welcome to Westmarch, a beautiful period home that exudes charm and character, nestled in the picturesque village of Kilmacolm. This stunning detached sandstone residence boasts ornate cornices, original woodwork, and breathtaking stained-glass windows, showcasing its unique heritage.
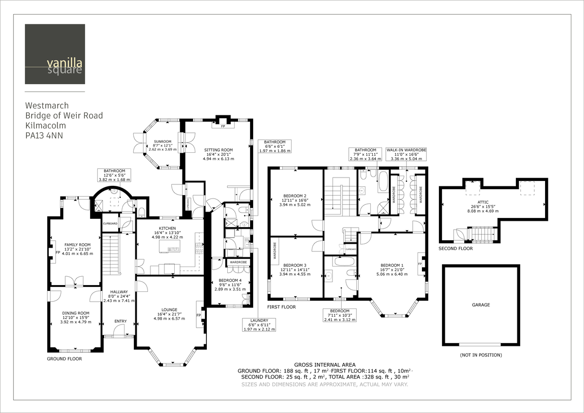
Ground Floor Accommodation:
Upon entering, you’ll find a striking hallway with sweeping staircase and will catch a glimpse of two jaw-dropping stained glass windows. The grand formal lounge features a fireplace and a lovely bay window that floods the room with natural light. A formal dining room with elegant doors lead into a cosy sitting/family room, perfect for relaxed gatherings. The sitting/family room also gives direct access to the rear gardens bringing the outside in. The well-appointed kitchen offers fitted wall and floor units, an island unit, and ample space for a dining table, making it a delightful space for cooking and entertaining. A stylish shower room with a three-piece suite completes the ground floor.
Granny Flat:
One of the standout features of this property is the self-contained granny flat, ideal for older relatives or teenagers seeking independence. Equipped with its own electricity and gas supply, this flat offers a comfortable lounge, a delightful conservatory, a double bedroom with fitted wardrobes, kitchen area, and a modern shower room. A unique feature that is certain to impress.
First floor:
The upper level of the main house boasts a grand principal bedroom with a stunning recessed ceiling adorned with ornate cornice, and a bay window offering views to the front. A large walk-in dressing room, complete with fitted wardrobes, is conveniently located adjacent to the principal suite and could be transformed into a fifth bedroom if desired. The principal bedroom also features a gorgeous en-suite bathroom.
Additionally, there are two generously sized double bedrooms on this floor, along with a beautifully designed family bathroom showcasing a five-piece suite.
Ascend to the top level to discover another versatile double bedroom, providing endless possibilities for use.
The specification includes gas central heating ensuring a cosy home during all seasons.
Outdoor Space and Features:
The property is set amidst gorgeous, mature sunny rear gardens that ensure privacy and tranquillity, featuring a well-tended lawn, a patio area, and an extensive gravel section adorned with vibrant plants and shrubs. The large sweeping gated driveway leads to a detached garage, providing ample parking and secure storage.
This exceptional family home combines period elegance with modern comforts, making it perfect for a growing family. Experience the charm of Westmarch and don’t miss out on the chance to call it home.
Kilmacolm is a charming village situated in Inverclyde, Scotland, known for its picturesque settings and rich history. Nestled amidst stunning countryside, it boasts beautiful sandstone buildings, vibrant gardens, and a close-knit community. Residents enjoy a peaceful lifestyle while benefiting from nearby amenities, including quaint shops, cafes, and recreational facilities. There is a fabulous golf course, a tennis club, a bowling club, a park and high-ranking schools. The village is surrounded by scenic walking trails and parks, making it a perfect retreat for nature lovers. Kilmacolm combines the tranquillity of rural living with easy access to larger towns and cities, creating an idyllic place to call home.
EER band E




























































