Sold by Vanilla Square.
Set within one of the most prestigious and desirable addresses in Glasgow’s West End, this magnificent duplex apartment offers a rare combination of elegant period charm, modern comfort, and private outdoor space – all within the iconic tree-lined setting of Westbourne Gardens.
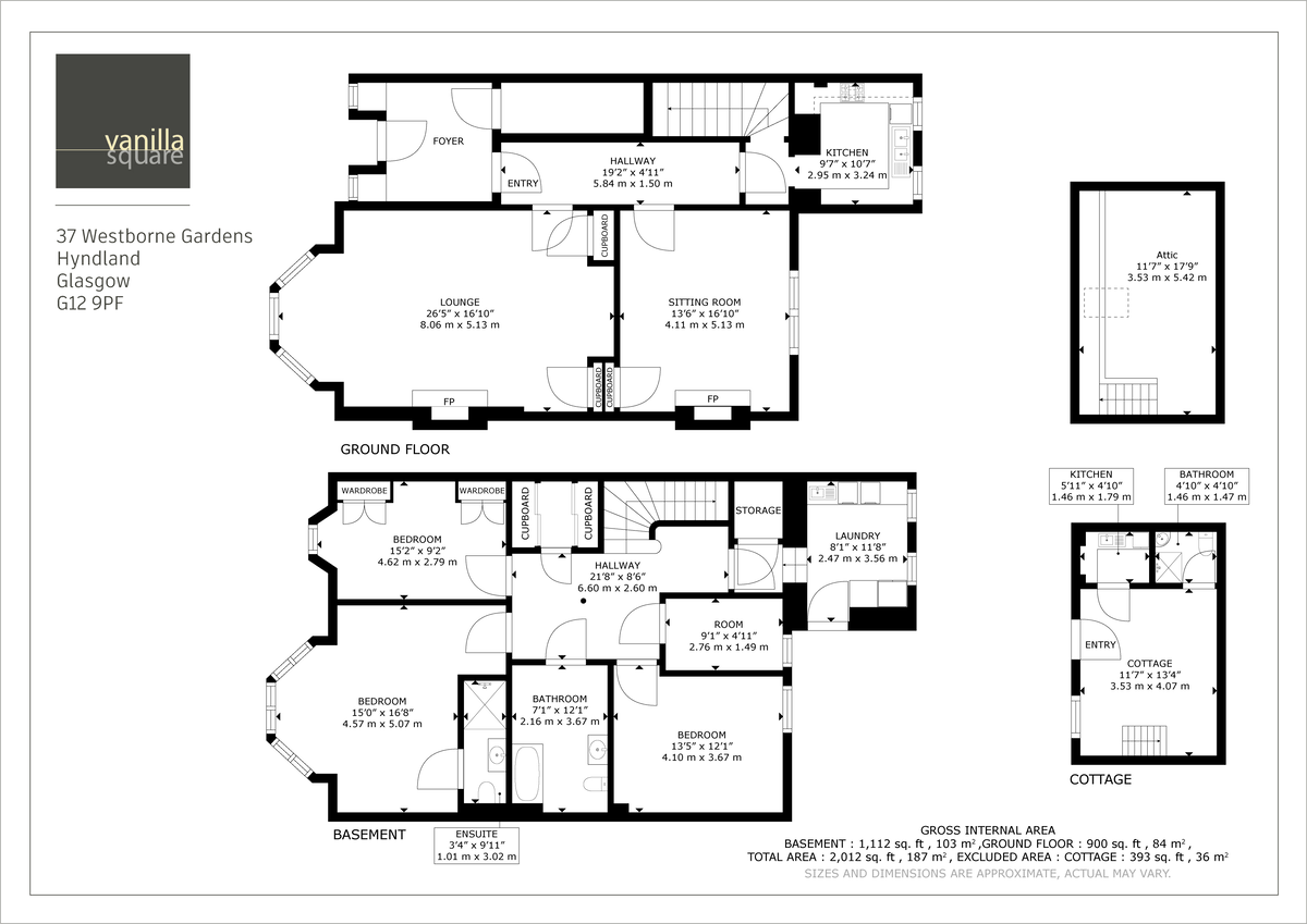
Occupying the ground and garden levels of an imposing blonde sandstone townhouse, this exceptional home spans two beautifully appointed floors and benefits from access to exclusive pleasure gardens, as well as its own private south-facing garden – a true oasis in the heart of the West End.
Entering via the ground floor, the accommodation impresses immediately with its grandeur and character. To the front, an incredible formal lounge showcases a stunning feature fireplace, intricate Stirling gold-leaf cornicing, and a graceful bay window that floods the room with natural light. This is a space designed equally for entertaining and relaxing.
Adjacent is a highly versatile sitting/family room, which could easily function as a fifth bedroom or guest room if required, providing flexible living arrangements for families or those who love to host.
To the rear, a well-maintained and practical kitchen enjoys leafy views over the garden.
Downstairs, the accommodation continues to impress with a generous principal bedroom to the front featuring a bay window and a stylish, contemporary en-suite shower room. There are two further spacious double bedrooms, a single bedroom/home office, and a large family bathroom complete with a classic white three-piece suite.
A particularly valuable feature is the utility room, which provides direct access out to the beautifully landscaped private garden.
The garden itself is a hidden gem: peaceful, south-facing, and framed by mature trees, shrubs, and well-tended planting. A patio seating area offers the perfect spot for relaxing or dining al fresco in the summer months.
One of the most unique and exciting features of this home is the outbuilding at the foot of the garden. This highly adaptable space is currently arranged as a large multi-purpose room, shower room, utility space, and mezzanine level, offering endless potential as a studio, home office, gym, guest suite, or creative retreat.
Further benefits include gas central heating and permit parking available via Glasgow City Council.
Located in the heart of Hyndland, this home enjoys all the character, charm, and convenience that makes the West End of Glasgow so sought after. Known for its leafy avenues, sandstone townhouses, and strong sense of community, Hyndland offers an exceptional lifestyle with boutique shops, artisan cafés, acclaimed restaurants, and excellent schooling all within walking distance.
The area is well-served by public transport, with Hyndland train station just a short stroll away, offering swift links to Glasgow city centre and beyond. The nearby Byres Road and Great Western Road provide an array of further amenities, while the Botanic Gardens and Kelvingrove Park offer tranquil green spaces close at hand.
EER band D
















































