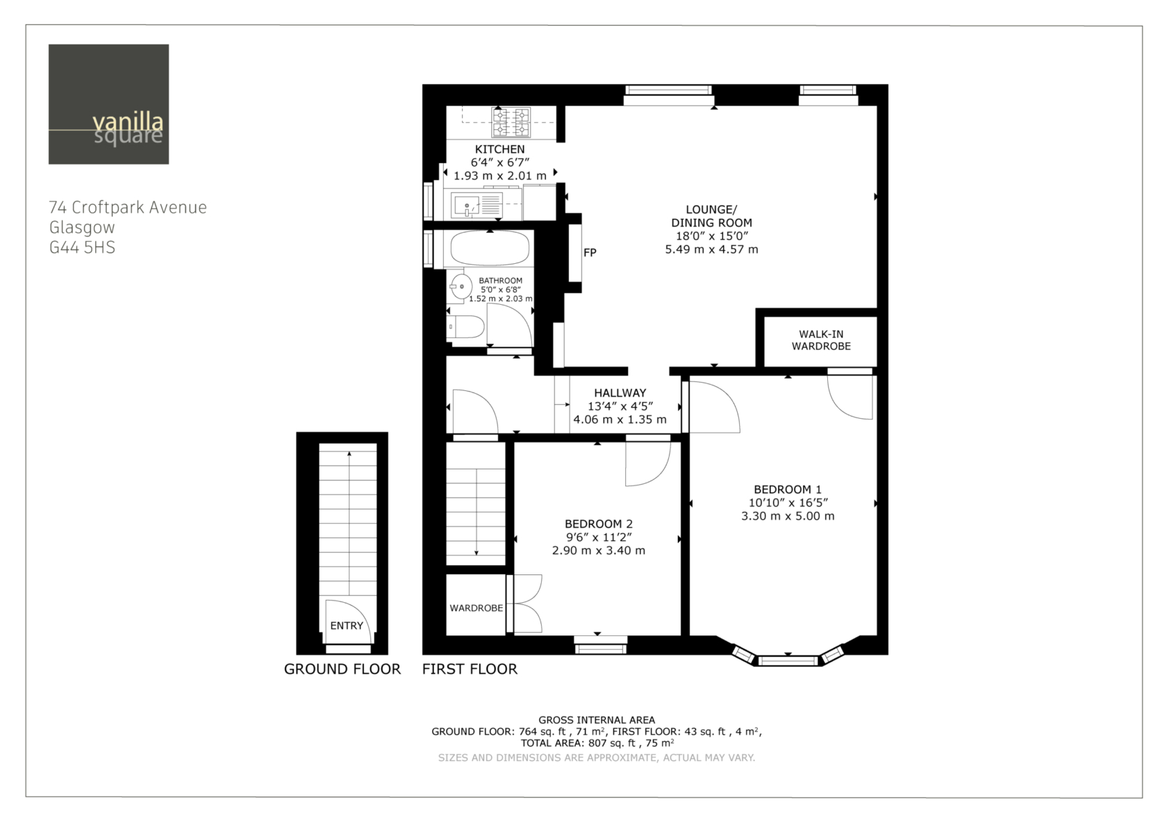
Located in the popular residential area of Croftfoot, this well-presented two-bedroom upper cottage flat offers an ideal opportunity for first-time buyers, downsizers, or investors alike. Positioned on a quiet street within a well-established neighbourhood, the property combines traditional charm with modern convenience, making it a comfortable and appealing home.
The accommodation comprises a bright and spacious lounge that benefits from ample natural light, creating a warm and welcoming atmosphere. The kitchen is fitted with a range of wall and base units, providing plenty of storage and workspace for everyday living. There are two generously sized double bedrooms, both of which offer flexible space for sleeping, working, or additional storage, and a well-appointed bathroom with a three-piece suite completes the internal layout.
The property is enhanced by gas central heating and double glazing throughout, ensuring comfort all year round. Externally, there is off-street parking available and access to private garden space at the rear, ideal for outdoor relaxation or entertaining.
74 Croftpark Avenue is conveniently located close to a range of local amenities including shops, schools, and public transport links. Croftfoot and Kings Park train stations are within easy reach, offering direct routes into Glasgow city centre and beyond, while nearby parks and green spaces provide excellent opportunities for recreation.
This is a great opportunity to secure a lovely home in a well-connected and sought-after part of Glasgow’s Southside.

If you are interested in this property, please contact us anytime on

2

1

1

EER Band: C

753 Sq. ft.
ARRANGE A VIEWING OF
74 Croftpark Avenue, Croftfoot, Glasgow, G44 5HS

