This fabulous three-bedroom main-door duplex, set within Cala Homes’ prestigious Prince’s Quay development, offers an exceptional standard of contemporary living in one of Glasgow’s most sought-after waterside locations. Designed with generous proportions and high-spec finishes throughout, this property will appeal equally to young professionals, couples and families seeking a spacious, stylish home close to the heart of the city.
The Prince’s Quay development, created by award-winning housebuilder Cala Homes, sits on the former Glasgow Garden Festival site at Pacific Quay. The setting combines riverside tranquillity with outstanding city convenience. Residents enjoy beautifully landscaped communal gardens, allocated parking, and an exceptional specification typical of Cala’s renowned quality. The location is outstanding—next to the Village Hotel with its gym and pool, ideal for fitness enthusiasts, and neighbouring the BBC, STV and the Science Centre. The vibrant West End is moments away, while the city centre is right on your doorstep, offering a wealth of cafes, restaurants, cultural venues and transport links.
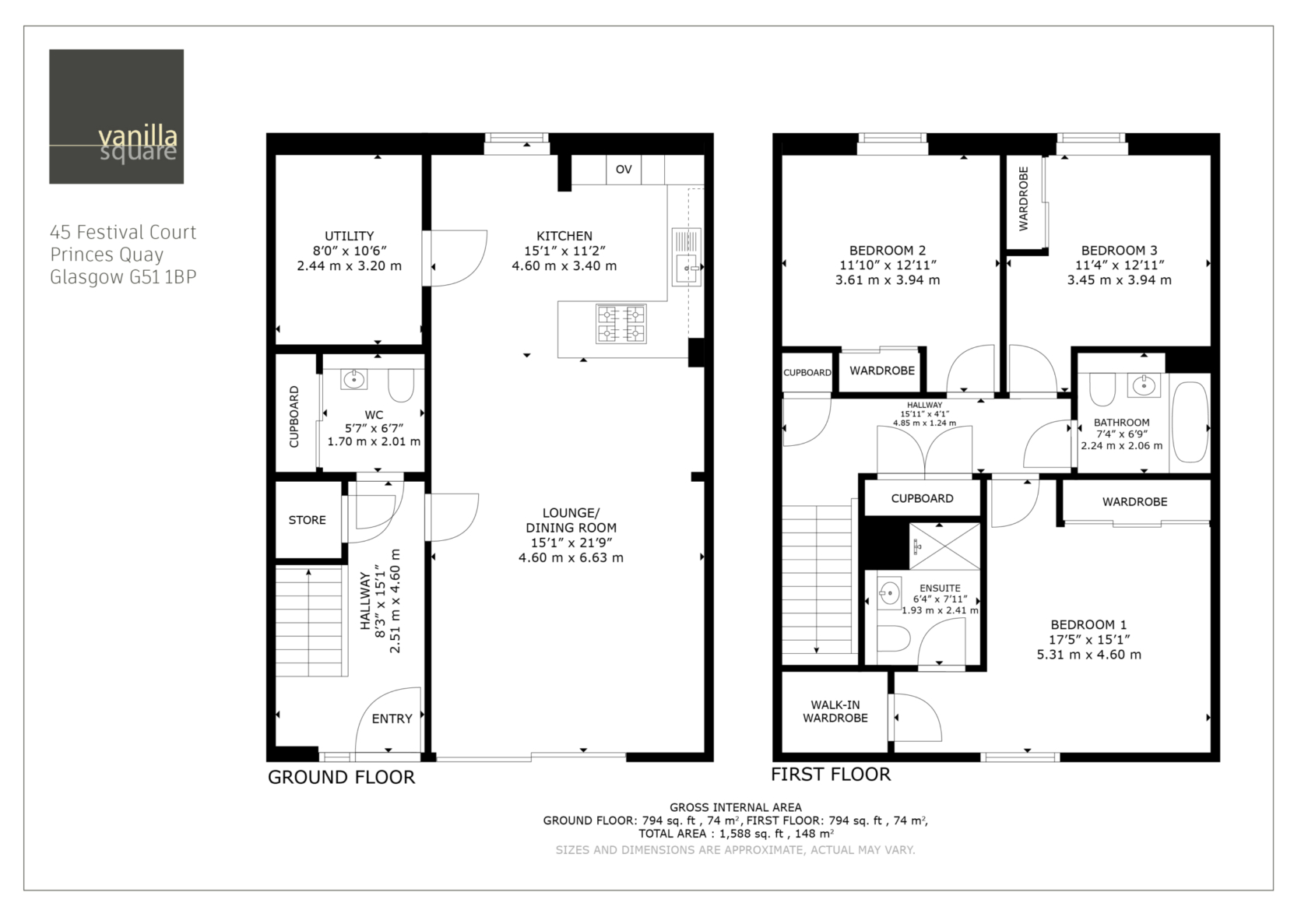
The property’s main-door entrance is found at first-floor level, opening into a broad and welcoming hallway. The heart of the home is a stunning open-plan lounge, dining and kitchen area that extends the full length of the property—over 32 feet from front to rear. The lounge enjoys south-facing aspects overlooking the communal gardens, flooding the space with natural light, and there is ample room for dining furniture, making it perfect for entertaining. The kitchen is beautifully appointed with high-quality wall and floor units, complementary worktops and integrated appliances. A practical utility room is located just off the kitchen, providing additional storage and workspace. Completing this level is a contemporary WC/cloakroom with a useful storage cupboard.
Upstairs, the principal bedroom is a luxurious retreat, featuring a dressing area, both a walk-in wardrobe and a fitted wardrobe, and a stylish en-suite shower room. There are two further spacious double bedrooms, each with fitted wardrobes, offering excellent flexibility for family living, guests or home working. The main bathroom is finished with a fresh white three-piece suite and quality fixtures.
The specification includes gas central heating and double glazing, ensuring comfort and energy efficiency throughout the seasons. Cala’s signature attention to detail is evident in every aspect of the design and finish.
Externally, there is a delightful communal terrace to the front, shared by just two properties—a perfect spot for morning coffee or evening relaxation. The landscaped residents’ gardens provide a peaceful haven away from the bustle of everyday life, while an allocated parking space offers convenience and security.

If you are interested in this property, please contact us anytime on

3

1

2

EER Band: B

1588 Sq. ft.
ARRANGE A VIEWING OF
45 Festival Court, Princes Quay, Glasgow, G51 1BP

