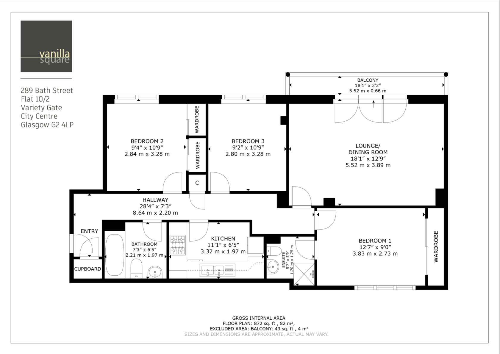
Situated on the 10th floor of a modern development at the foot of Bath Street, this spacious three-bedroom flat offers exceptional value for money in the heart of Glasgow City Centre. Boasting a private balcony, generous living space, and contemporary finishes throughout, the property will appeal to first-time buyers, young professionals, and students attending the nearby universities.
The accommodation comprises a bright and airy lounge with ample space for both a sitting area and dining table. Three sets of doors open out onto the private balcony, creating a seamless indoor-outdoor flow. The separate kitchen is fitted with a range of wall and floor units, complementary worktops, and integrated appliances including an electric hob and oven.
The principal bedroom features an en-suite shower room, while two further well-proportioned bedrooms - one with fitted wardrobes - offer flexible living or study space. A family bathroom with a fresh white three-piece suite and over-bath shower completes the internal layout.
Additional benefits include efficient electric heating, double glazing, lift access to all floors, and a secure entry system.
Located in Glasgow City Centre, the property enjoys immediate access to the vibrant cultural, social, and commercial life of the city. Bath Street is moments from a wide range of bars, restaurants, shops, and entertainment venues, as well as excellent public transport links including bus, subway, and train services. The nearby University of Strathclyde, Glasgow Caledonian University, and the City of Glasgow College make this an ideal location for students and professionals alike.

If you are interested in this property, please contact us anytime on

3

1

2

EER Band: D

872 Sq. ft.
ARRANGE A VIEWING OF
10/2, 289 Bath Street, City Centre, Glasgow, G2 4LP